Number 51
Howey Lane, Frodsham
Offers Over £1,350,000
Property Overview
ADDRESS
Number 51, Howey Lane, Frodsham, WA6 6DF
BEDROOMS
6
BATHROOMS
5
Property Overview
ADDRESS
BEDROOMS
BATHROOMS
Property Details
Property
Details
A charming and forward thinking property in one of Frodsham's most desirable areas
51 Howey Lane, Frodsham, WA6 6DF
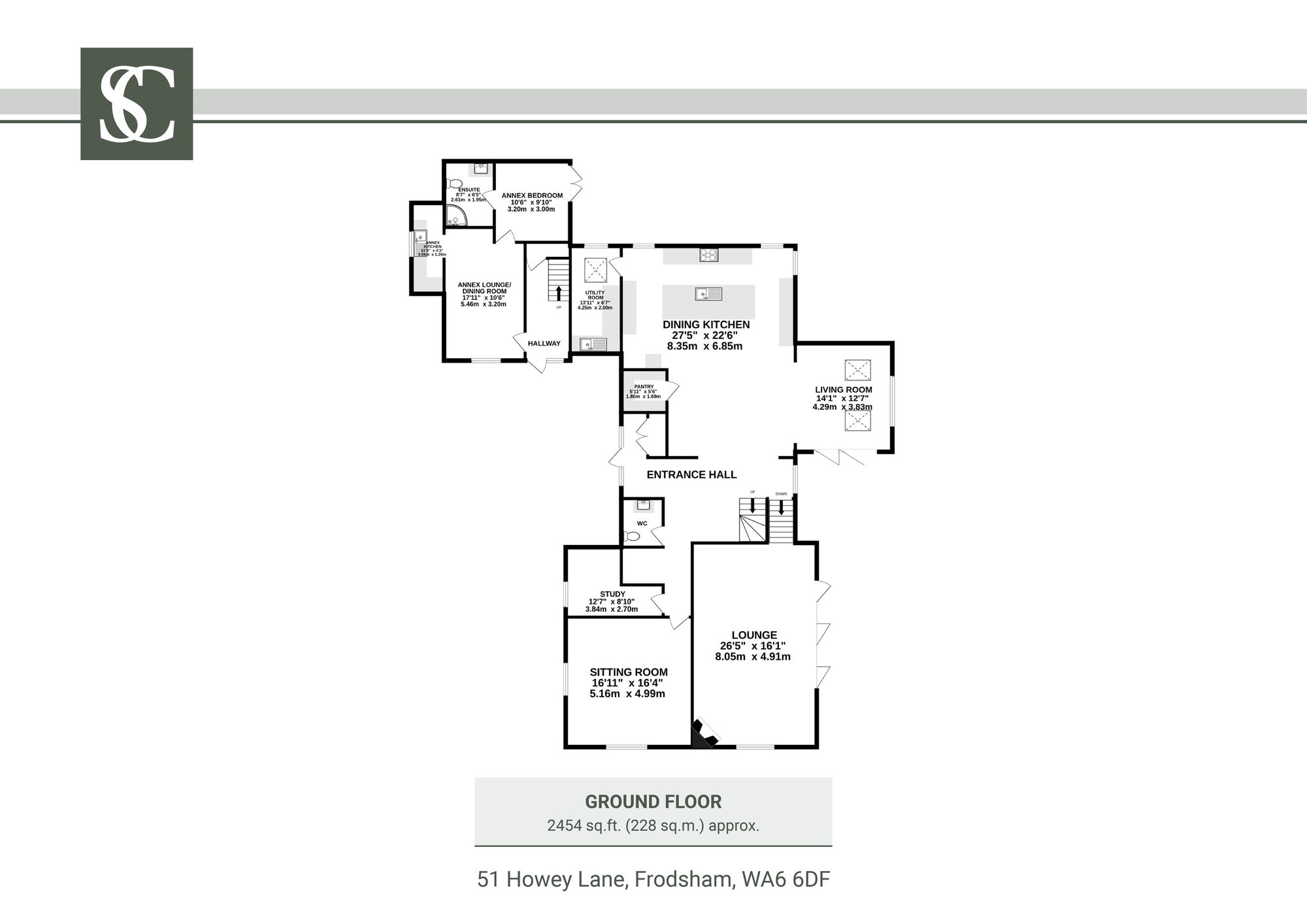
Set against the wooded rise of Frodsham Hill and just steps from the starting point of the Sandstone Trail, No. 51 Howey Lane is a bespoke, high-spec build created to bring families together… and it also holds two stand out surprises: a beautifully finished two-bedroom annexe and a garden plot with previous planning permission for a further home.
Beyond the gated driveway, No. 51 and its friendly red-brick, two-storey annexe stand shoulder to shoulder in an amiable L-shape. With plenty of parking for five or so cars, another set of gates provides further parking, leading to a landscaped area of the garden which has previously been granted planning permission for its own home.
The current home stands on the site of a former 1960s bungalow, purchased in 2014 for its peaceful, mature and private garden and woodland-backed position on Frodsham Hill. Following the demolition of the original build, a full bespoke rebuild followed, completed in 2019 to create the high-spec, contemporary home that stands today.
Wow factor welcome
Inside, No. 51 Howey Lane welcomes with a wow-factor entrance hallway. Ahead, thedouble-height window focuses all eyes on the lush greenery and trees in the garden beyond, while contemporary grey-and-white feature wallpaper to the right marries with the large-format grey porcelain tiles underfoot. With underfloor heating throughout, the warmth and welcome felt in the entrance hall continues throughout, with this impressive space openingdirectly into the kitchen, dining hall and sun room, creating a sociable, modern feel.
Contemporary flair is softened by the woodwork, choice pieces, whose uniquenessexemplifies the high quality of finish throughout. Making an effortlessly elegant statement to this effect is the bespoke oak staircase, which curves up to the right with four precision pieces of individually fitted glazing. Tucked to the side, stash coats and shoes neatly away in the bespoke cloak cupboard with automatic lighting, where the doors (specially chosen Canadian oak veneer) are individually made.
Opening up to the left, the main open plan living-dining-kitchen awaits. Moving from the airiness of the double height entrance hall, a sense of intimacy is found as the shift in ceiling height gently creates a more intimate, cosy feel in the kitchen.
The same large-format tiles flow seamlessly from the hallway into this space, creating a sense of continuity and openness, while a large central island serves as a convivial gathering point, with stools for morning coffee beneath the warm glow of the John Lewis brushed-metal pendants above.
Feast your eyes
German-made, the kitchen combines wooden drawers with sleek, high-gloss cabinetry, designed to accommodate every culinary essential, alongside a fully shelved walk-in pantry,providing storage that is truly second to none. Integrated appliances cover every need, including Siemens warming drawers, a long-format Miele oven, a Miele combi oven and a recently fitted Bosch dishwasher.
Sitting just off the back of the kitchen the long utility room is a practical space with plentiful storage and plumbing for the washing machine, while a door leads directly out to the outside patio, shared with the annexe, making it easy to bring in muddy boots or let pets out. The perfect place for dog towels, bedding and keeping the kitchen clutter contained, the utility room is complemented by a second, dedicated laundry room on the first floor.
Family time
At the heart of the kitchen-dining-living space, a big solid-wood dining table, extendable on both sides is currently in situ; perfect for extended family gatherings, with the sun room flowing off to the side, a bright, uplifting space designed exactly to the owners’ brief, to provide one continuous, sociable sweep of living space.
A log-burning stove infuses warmth on December days, while roof lanterns and bifolding doors draw in light, opening the room out to the garden in warmer months. A true party-friendly heart to the home, this entire flowing space was designed as a place for family visits, sociable catch ups with friends and festive celebrations.
OWNER QUOTE: “It’s a wonderful setting for Christmases and celebrations, with so much space. With the open-plan layout it never quite feels like a kitchen at all.
Winter warmth
For a moment of quiet, open plan living gives way to cosy calm across the entrance hallway and down illuminated wooden steps, in the comfort of the lounge. Walls of glass keep the outdoors close, with a big wall of bifolding doors inviting the garden indoors in summer. In winter, a log-burning stove creates cosy cheer, with a handsome floral feature wall imbuing a sense of sophistication.
Wallpaper is carefully chosen throughout the home with many rooms featuring distinctive, thoughtfully curated print. Downstairs, the cloakroom features a playful Cole & Son design, part of their celebrated chinoiserie-inspired collection. Forward-thinking in its design, the entrance hall also includes a recessed area currently used for wine storage, which has the structural scope to accommodate a lift to the first floor if ever desired.
Also on the ground floor is a peaceful home office, fitted with built-in shelving, creating an organised and calming place to work. Alongside it lies the snug; a favourite winter hideaway decorated in richer, darker tones and garden views, offering a cosy retreat when the evenings draw in.
Bedroom bliss
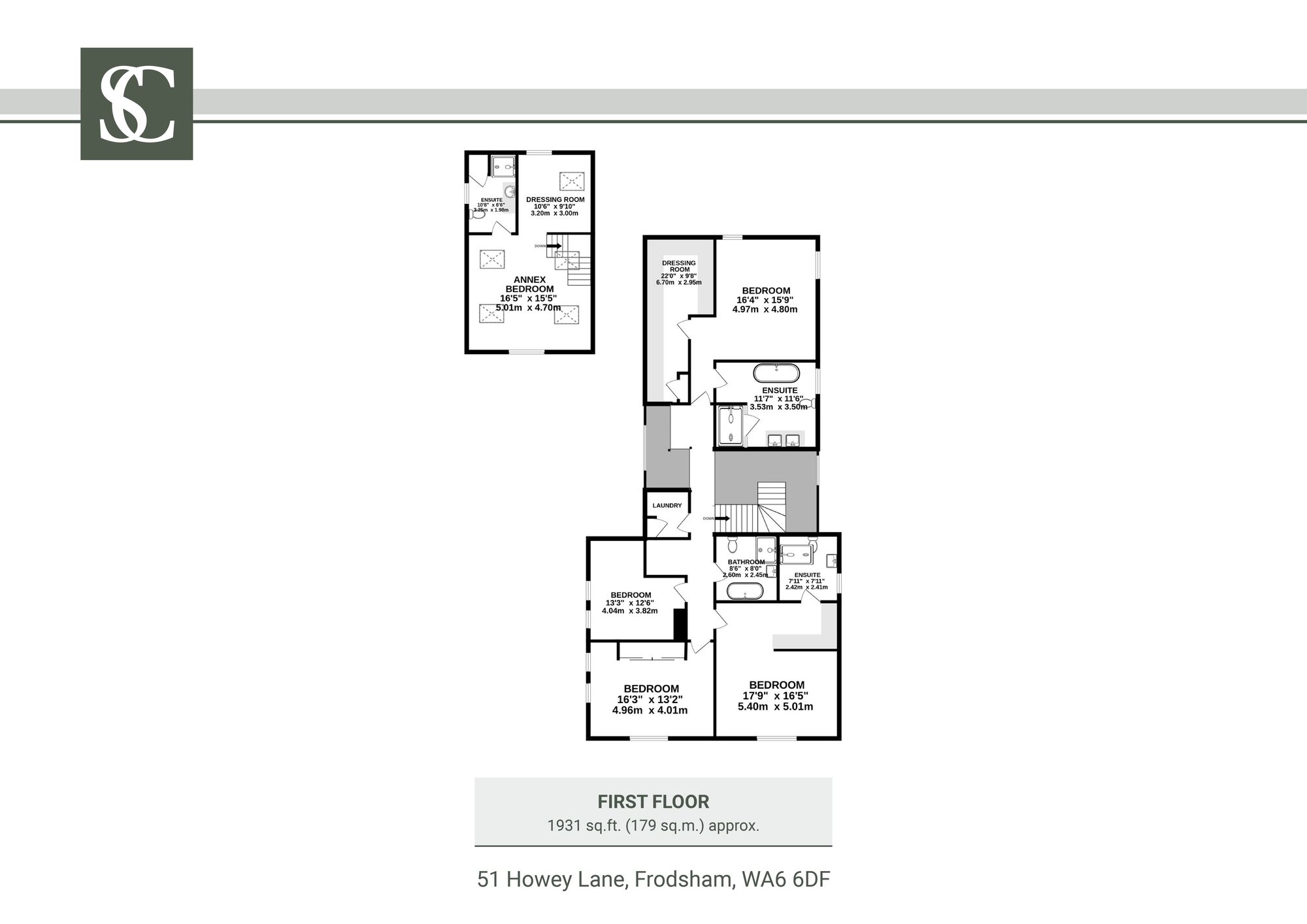
From the entrance hall, the artisan crafted, curving oak stairs sweep up to the first floor, where double height windows offer views to both the front and rear from the gallery landing. Overhead, a striking Tom Dixon feature light adds sculptural flair, while a discreet recessed area at the top of the stairs provides the perfect spot should a lift ever be desired in future.
Turning left from the top of the stairs, the dedicated laundry room is a clever touch, adding convenience to the weekly washing load, currently furnished with stacked Miele washing machine and dryer.
Freshen up in the main family bathroom across the landing, where a large, double ended bath tub is balanced by a walk-in, wet room shower. Tiled to the walls and underfoot, a vanity unit wash basin, heated towel radiator and WC also feature.
Light and bright, returning across the landing enter into the first of the bedrooms, a spacious double, with dual aspect views out over the garden, and plenty of storage.
Canadian oak doors continue throughout the home for a sense of continuity and flow.
At the end of the landing, a second bedroom provides glorious garden views through four windows to two sides, with a blue-green feature wall and dark-toned flooring.
Also positioned to this side of the first floor, a third guest bedroom enjoys its own walk-in wardrobe area and en suite wet room, creating a private, self-contained haven for family or overnight guests.
Serene sanctuary
From the main stairs, turn right over the gallery landing to find the principal bedroom, whoseen suite is a true sanctuary, wrapped in striking, marble-patterned walls that set a serene, spa-like tone. A freestanding tub sits beneath the window, perfectly positioned for long, quiet soaks with garden views while along another wall, twin basins sit beneath a wide, illuminated mirror. Refresh and revive in the large walk-in steam shower, featuring a curved built-in seat, creating a calm, restorative retreat.
Across, the walk-in wardrobe delivers boutique-style organisation, with open shelves for hats and accessories, woven baskets, hanging rails and a bank of soft-close drawers for elegantly ordered storage.
Serene and tranquil, with peaceful views stretching out over the garden, the main bedroom offers a true sense of retreat. Painted in a soothing Neptune shade, the room pairs its calm, chalky tones with a delicate floral feature wall and pale flooring, creating a fresh, restful atmosphere from first light to dusk.
OWNER QUOTE: “The views, the calm colours…this bedroom has great vibes.”
Entertain al fresco
Entertaining is interlaced with life both indoors and out at No. 51, Howey Lane where the garden is sculpted around the home for effortless flow between both.
For alfresco dining and reclining, patios, one linking naturally with the annexe, the other set slightly apart, sit against a backdrop of mature trees and sheltered planting. For children and pets, there is plenty of lawn to caper upon, while paths lead through planted borders towards a more private corner at the rear, where azaleas and layered foliage bring a soft woodland atmosphere.
Beneath the arbour, a gravelled area marks the site of the plot where planning permission has been previously granted for a detached dwelling, still reached by its own driveway. Now a formal garden with planting and pathways, the space adds breadth and flexibility to the garden.
From the garden, steps lead to a gate opening straight onto the Sandstone Trail, placing miles of woodland and hillside walking quite literally on the doorstep.
Outside the home itself, a set of steps leads down to the basement level, providing excellent storage and accommodating the ground-source heat pump and twin boilers out of sight.
Annexe for all
With its own landscaped frontage of leafy planting, gravel and a welcoming front path, the annexe stands as a spacious two-bedroom, two-storey home in its own right. Step inside to an airy entrance hallway dressed in muted tones (the annexe was fully refurbished just 18 months ago), with handy understairs storage ahead.
To the left, a large lounge enjoys views back towards the main home, with breakfast-bar seating along the rear wall for relaxed morning coffees or casual dining. From here, a galley kitchen offers space and storage with a sink beneath the window.
Also accessed from the lounge is a bountiful double bedroom, wrapped in a cocooning shade of forest green and served by a contemporary en suite. This calming shower room combines warm wood-effect flooring with pale walls and marble-style tiling for a soft, spa-like feel. French doors from the bedroom open to a courtyard garden shared with the main home - an ideal setup for sociable, multi-generational living.
Upstairs, a bright and inviting second bedroom with its own sitting area and garden views is light filled courtesy of Velux windows, with a rich plum feature wall adding an intimate, cosy ambience. Refresh and revive in the large shower room en suite bathroom.
Dressed in deep, dusky rose pink, there is a romantic feel to the neighbouring dressing room, which could also work well as a quiet study or a private reading space, lending the annexe a flexible, versatile layout.
Room to grow
With planning permission already granted to extend the annexe into a three-bedroom, all-en suite home with a larger kitchen – alongside a garden plot previously approved for a detached dwelling with its own driveway – No. 51 offers exciting long-term flexibility, from multigenerational living to potential income-generating opportunities.
Out and about
Step outside and discover the delights on the doorstep. Just across the road Castle Park is a favoured stroll for dog owners, ideal for a quiet morning loop, or an easy wander down through the trees to the village high street.
From here, discover a wealth of amenities, from cafés and pubs for weekend brunches, to welcoming restaurants for impromptu dinners. All the practicalities are on hand, including supermarkets, doctors, dentists.
For lovers of the outdoors, footpaths lead straight up to the top of Frodsham Hill, while the Sandstone Trail begins almost at the doorstep, offering more than 30 miles of woodland, ridgeway views and endless routes for running, dog walking or simply escaping into greenery.
Connectivity is unrivalled, with the M56 and M6 both close by, putting North Wales, the Midlands and wider Cheshire within easy reach. Both Manchester and Liverpool airports sit around half an hour away and trains from Frodsham station make popping into both cities convenient. Further afield, Runcorn’s direct line is ready to whisk you to London in under two hours.
Families are equally well served: Helsby High School is just up the road, while the independent King’s and Queen’s in Chester are around a 25-minute drive, alongside a cluster of well-regarded primary schools which are dotted throughout the area.
Wonderfully well placed and inimitably welcoming - a calming, relaxing home, spacious yet invitingly warm and cosy, No. 51, Howey Lane reinvents the concept of contemporary open plan living.
Disclaimer
The information Storeys of Cheshire has provided is for general informational purposes only and does not form part of any offer or contract. The agent has not tested any equipment or services and cannot verify their working order or suitability. Buyers should consult their solicitor or surveyor for verification. Photographs shown are for illustration purposes only and may not reflect the items included in the property sale. Please note that lifestyle descriptions are provided as a general indication. Regarding planning and building consents, buyers should conduct their own enquiries with the relevant authorities. All measurements are approximate. Properties are offered subject to contract, and neither Storeys of Cheshire nor its employees or associated partners have the authority to provide any representations or warranties.
Property Details
A charming and forward thinking property in one of Frodsham's most desirable areas
51 Howey Lane, Frodsham, WA6 6DF
Set against the wooded rise of Frodsham Hill and just steps from the starting point of the Sandstone Trail, No. 51 Howey Lane is a bespoke, high-spec build created to bring families together… and it also holds two stand out surprises: a beautifully finished two-bedroom annexe and a garden plot with previous planning permission for a further home.
Beyond the gated driveway, No. 51 and its friendly red-brick, two-storey annexe stand shoulder to shoulder in an amiable L-shape. With plenty of parking for five or so cars, another set of gates provides further parking, leading to a landscaped area of the garden which has previously been granted planning permission for its own home.
The current home stands on the site of a former 1960s bungalow, purchased in 2014 for its peaceful, mature and private garden and woodland-backed position on Frodsham Hill. Following the demolition of the original build, a full bespoke rebuild followed, completed in 2019 to create the high-spec, contemporary home that stands today.
Wow factor welcome
Inside, No. 51 Howey Lane welcomes with a wow-factor entrance hallway. Ahead, thedouble-height window focuses all eyes on the lush greenery and trees in the garden beyond, while contemporary grey-and-white feature wallpaper to the right marries with the large-format grey porcelain tiles underfoot. With underfloor heating throughout, the warmth and welcome felt in the entrance hall continues throughout, with this impressive space openingdirectly into the kitchen, dining hall and sun room, creating a sociable, modern feel.
Contemporary flair is softened by the woodwork, choice pieces, whose uniquenessexemplifies the high quality of finish throughout. Making an effortlessly elegant statement to this effect is the bespoke oak staircase, which curves up to the right with four precision pieces of individually fitted glazing. Tucked to the side, stash coats and shoes neatly away in the bespoke cloak cupboard with automatic lighting, where the doors (specially chosen Canadian oak veneer) are individually made.
Opening up to the left, the main open plan living-dining-kitchen awaits. Moving from the airiness of the double height entrance hall, a sense of intimacy is found as the shift in ceiling height gently creates a more intimate, cosy feel in the kitchen.
The same large-format tiles flow seamlessly from the hallway into this space, creating a sense of continuity and openness, while a large central island serves as a convivial gathering point, with stools for morning coffee beneath the warm glow of the John Lewis brushed-metal pendants above.
Feast your eyes
German-made, the kitchen combines wooden drawers with sleek, high-gloss cabinetry, designed to accommodate every culinary essential, alongside a fully shelved walk-in pantry,providing storage that is truly second to none. Integrated appliances cover every need, including Siemens warming drawers, a long-format Miele oven, a Miele combi oven and a recently fitted Bosch dishwasher.
Sitting just off the back of the kitchen the long utility room is a practical space with plentiful storage and plumbing for the washing machine, while a door leads directly out to the outside patio, shared with the annexe, making it easy to bring in muddy boots or let pets out. The perfect place for dog towels, bedding and keeping the kitchen clutter contained, the utility room is complemented by a second, dedicated laundry room on the first floor.
Family time
At the heart of the kitchen-dining-living space, a big solid-wood dining table, extendable on both sides is currently in situ; perfect for extended family gatherings, with the sun room flowing off to the side, a bright, uplifting space designed exactly to the owners’ brief, to provide one continuous, sociable sweep of living space.
A log-burning stove infuses warmth on December days, while roof lanterns and bifolding doors draw in light, opening the room out to the garden in warmer months. A true party-friendly heart to the home, this entire flowing space was designed as a place for family visits, sociable catch ups with friends and festive celebrations.
OWNER QUOTE: “It’s a wonderful setting for Christmases and celebrations, with so much space. With the open-plan layout it never quite feels like a kitchen at all.
Winter warmth
For a moment of quiet, open plan living gives way to cosy calm across the entrance hallway and down illuminated wooden steps, in the comfort of the lounge. Walls of glass keep the outdoors close, with a big wall of bifolding doors inviting the garden indoors in summer. In winter, a log-burning stove creates cosy cheer, with a handsome floral feature wall imbuing a sense of sophistication.
Wallpaper is carefully chosen throughout the home with many rooms featuring distinctive, thoughtfully curated print. Downstairs, the cloakroom features a playful Cole & Son design, part of their celebrated chinoiserie-inspired collection. Forward-thinking in its design, the entrance hall also includes a recessed area currently used for wine storage, which has the structural scope to accommodate a lift to the first floor if ever desired.
Also on the ground floor is a peaceful home office, fitted with built-in shelving, creating an organised and calming place to work. Alongside it lies the snug; a favourite winter hideaway decorated in richer, darker tones and garden views, offering a cosy retreat when the evenings draw in.
Bedroom bliss
From the entrance hall, the artisan crafted, curving oak stairs sweep up to the first floor, where double height windows offer views to both the front and rear from the gallery landing. Overhead, a striking Tom Dixon feature light adds sculptural flair, while a discreet recessed area at the top of the stairs provides the perfect spot should a lift ever be desired in future.
Turning left from the top of the stairs, the dedicated laundry room is a clever touch, adding convenience to the weekly washing load, currently furnished with stacked Miele washing machine and dryer.
Freshen up in the main family bathroom across the landing, where a large, double ended bath tub is balanced by a walk-in, wet room shower. Tiled to the walls and underfoot, a vanity unit wash basin, heated towel radiator and WC also feature.
Light and bright, returning across the landing enter into the first of the bedrooms, a spacious double, with dual aspect views out over the garden, and plenty of storage.
Canadian oak doors continue throughout the home for a sense of continuity and flow.
At the end of the landing, a second bedroom provides glorious garden views through four windows to two sides, with a blue-green feature wall and dark-toned flooring.
Also positioned to this side of the first floor, a third guest bedroom enjoys its own walk-in wardrobe area and en suite wet room, creating a private, self-contained haven for family or overnight guests.
Serene sanctuary
From the main stairs, turn right over the gallery landing to find the principal bedroom, whoseen suite is a true sanctuary, wrapped in striking, marble-patterned walls that set a serene, spa-like tone. A freestanding tub sits beneath the window, perfectly positioned for long, quiet soaks with garden views while along another wall, twin basins sit beneath a wide, illuminated mirror. Refresh and revive in the large walk-in steam shower, featuring a curved built-in seat, creating a calm, restorative retreat.
Across, the walk-in wardrobe delivers boutique-style organisation, with open shelves for hats and accessories, woven baskets, hanging rails and a bank of soft-close drawers for elegantly ordered storage.
Serene and tranquil, with peaceful views stretching out over the garden, the main bedroom offers a true sense of retreat. Painted in a soothing Neptune shade, the room pairs its calm, chalky tones with a delicate floral feature wall and pale flooring, creating a fresh, restful atmosphere from first light to dusk.
OWNER QUOTE: “The views, the calm colours…this bedroom has great vibes.”
Entertain al fresco
Entertaining is interlaced with life both indoors and out at No. 51, Howey Lane where the garden is sculpted around the home for effortless flow between both.
For alfresco dining and reclining, patios, one linking naturally with the annexe, the other set slightly apart, sit against a backdrop of mature trees and sheltered planting. For children and pets, there is plenty of lawn to caper upon, while paths lead through planted borders towards a more private corner at the rear, where azaleas and layered foliage bring a soft woodland atmosphere.
Beneath the arbour, a gravelled area marks the site of the plot where planning permission has been previously granted for a detached dwelling, still reached by its own driveway. Now a formal garden with planting and pathways, the space adds breadth and flexibility to the garden.
From the garden, steps lead to a gate opening straight onto the Sandstone Trail, placing miles of woodland and hillside walking quite literally on the doorstep.
Outside the home itself, a set of steps leads down to the basement level, providing excellent storage and accommodating the ground-source heat pump and twin boilers out of sight.
Annexe for all
With its own landscaped frontage of leafy planting, gravel and a welcoming front path, the annexe stands as a spacious two-bedroom, two-storey home in its own right. Step inside to an airy entrance hallway dressed in muted tones (the annexe was fully refurbished just 18 months ago), with handy understairs storage ahead.
To the left, a large lounge enjoys views back towards the main home, with breakfast-bar seating along the rear wall for relaxed morning coffees or casual dining. From here, a galley kitchen offers space and storage with a sink beneath the window.
Also accessed from the lounge is a bountiful double bedroom, wrapped in a cocooning shade of forest green and served by a contemporary en suite. This calming shower room combines warm wood-effect flooring with pale walls and marble-style tiling for a soft, spa-like feel. French doors from the bedroom open to a courtyard garden shared with the main home - an ideal setup for sociable, multi-generational living.
Upstairs, a bright and inviting second bedroom with its own sitting area and garden views is light filled courtesy of Velux windows, with a rich plum feature wall adding an intimate, cosy ambience. Refresh and revive in the large shower room en suite bathroom.
Dressed in deep, dusky rose pink, there is a romantic feel to the neighbouring dressing room, which could also work well as a quiet study or a private reading space, lending the annexe a flexible, versatile layout.
Room to grow
With planning permission already granted to extend the annexe into a three-bedroom, all-en suite home with a larger kitchen – alongside a garden plot previously approved for a detached dwelling with its own driveway – No. 51 offers exciting long-term flexibility, from multigenerational living to potential income-generating opportunities.
Out and about
Step outside and discover the delights on the doorstep. Just across the road Castle Park is a favoured stroll for dog owners, ideal for a quiet morning loop, or an easy wander down through the trees to the village high street.
From here, discover a wealth of amenities, from cafés and pubs for weekend brunches, to welcoming restaurants for impromptu dinners. All the practicalities are on hand, including supermarkets, doctors, dentists.
For lovers of the outdoors, footpaths lead straight up to the top of Frodsham Hill, while the Sandstone Trail begins almost at the doorstep, offering more than 30 miles of woodland, ridgeway views and endless routes for running, dog walking or simply escaping into greenery.
Connectivity is unrivalled, with the M56 and M6 both close by, putting North Wales, the Midlands and wider Cheshire within easy reach. Both Manchester and Liverpool airports sit around half an hour away and trains from Frodsham station make popping into both cities convenient. Further afield, Runcorn’s direct line is ready to whisk you to London in under two hours.
Families are equally well served: Helsby High School is just up the road, while the independent King’s and Queen’s in Chester are around a 25-minute drive, alongside a cluster of well-regarded primary schools which are dotted throughout the area.
Wonderfully well placed and inimitably welcoming - a calming, relaxing home, spacious yet invitingly warm and cosy, No. 51, Howey Lane reinvents the concept of contemporary open plan living.
Disclaimer
The information Storeys of Cheshire has provided is for general informational purposes only and does not form part of any offer or contract. The agent has not tested any equipment or services and cannot verify their working order or suitability. Buyers should consult their solicitor or surveyor for verification. Photographs shown are for illustration purposes only and may not reflect the items included in the property sale. Please note that lifestyle descriptions are provided as a general indication. Regarding planning and building consents, buyers should conduct their own enquiries with the relevant authorities. All measurements are approximate. Properties are offered subject to contract, and neither Storeys of Cheshire nor its employees or associated partners have the authority to provide any representations or warranties.
Request A Viewing At
Number 51
Please read the Storeys Of Cheshire Privacy Policy.
This site is protected by reCAPTCHA and the Google Privacy Policy and Terms of Service apply.























































