Number 5
Dunham Hall Mews, Dunham on the Hill
Offers Over £500,000
Property Overview
ADDRESS
Number 5, Dunham Hall Mews, Dunham on the Hill, WA6 0LU
BEDROOMS
3
BATHROOMS
2
Property Overview
ADDRESS
BEDROOMS
BATHROOMS
Property Details
Property
Details
5 Dunham Hall Mews
With the great outdoors on your doorstep, experience the enchantment of rural living, at No. 5, Dunham Hall Mews, in Dunham-on-the-Hill.
Contemporary comfort with character
A family farm for generations, No. 5 is one of an exclusive collection of farm building conversions completed eight years ago, providing modern farmhouse living in the embrace of nature.
Rural, but not remote, just two miles from Helsby Station and its connections through Chester to the North Wales Coast, or into Manchester and the North West, No. 5, Dunham Hall Mews is a convenient country oasis.
With parking for two cars comfortably, the character of the home reveals itself upon arrival, with its rustic Cheshire brick charm.
A warm welcome
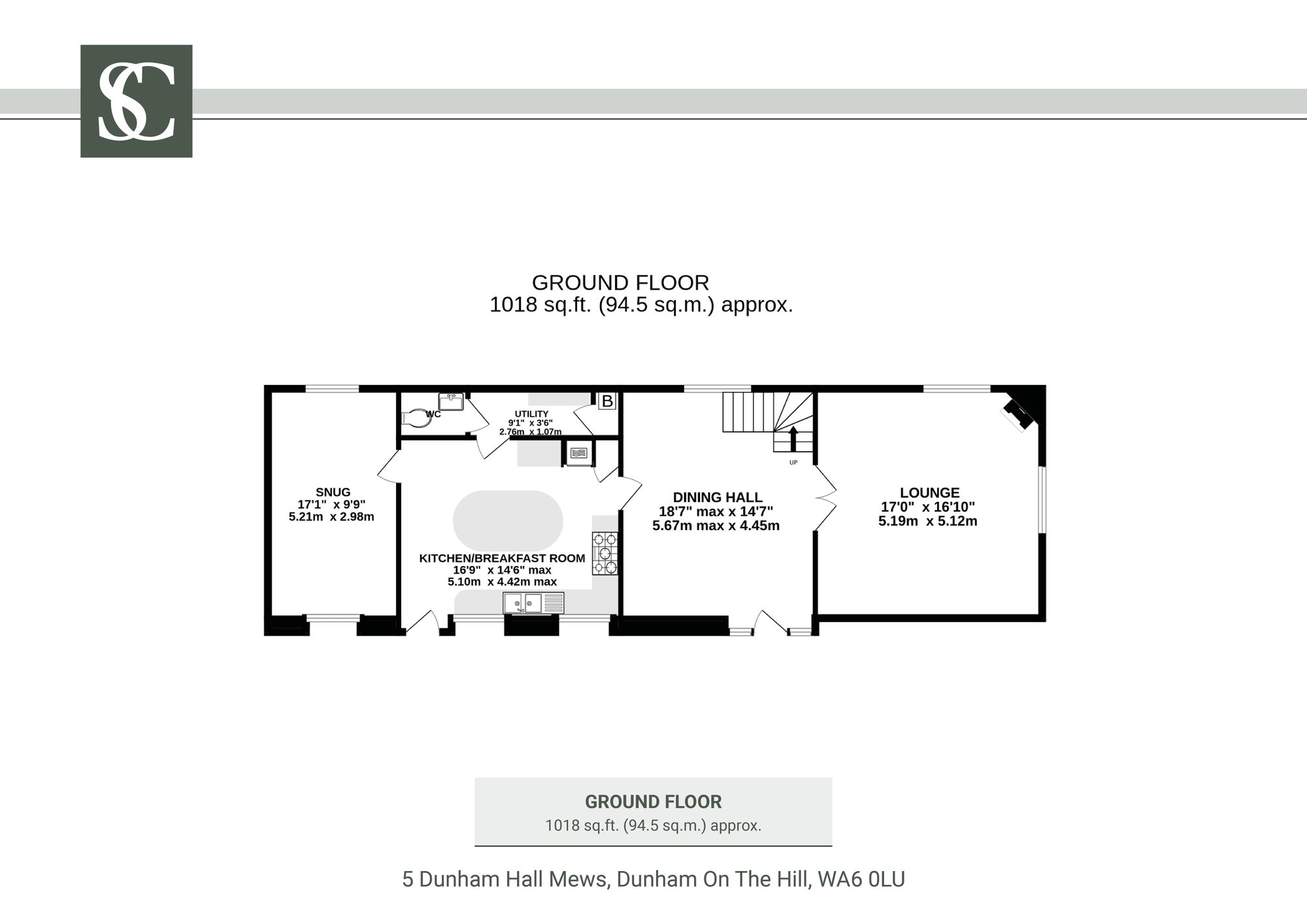
Stepping indoors, savour the spaciousness of the family kitchen, lined in large cream tiles and furnished in a contemporary farmhouse style, with plinth-lit cream cabinetry and drawers and an oak-topped central island breakfast bar set beneath a stylish suspended stripped bulb lighting feature.
A large double sink is practical for food prep, whilst an array of appliances including washing machine and tumble dryer, dishwasher, double oven and fridge freezer add ease to daily housework. Dine sociably at the breakfast bar with family seating for four, and a handy drinks fridge within the island.
Opening up from the kitchen, there is a useful pantry, offering ample storage in the floor and wall cupboards, with a large boiler cupboard the perfect proportions for stashing a vacuum cleaner and ironing board. Off the pantry there is also a handy downstairs WC.
With spacious rooms providing pockets of privacy and space to entertain, off the kitchen, discover the lounge, a cosy family room carpeted in grey, also serving as a home office.
Entertain and unwind
Entertain family and friends in the dining hall opening up to the right of the kitchen, a distinct space yet easily accessible when hosting. Light and bright, with blind-fitted windows to the front and rear, this room can be directly accessed from the garden, making it ideal for summer dining out in the garden.
Double doors connect through into the main living room, a light and bright haven, with plenty of space for sofas and guests. Toasty warmth fills the room from the gas log burner, whilst windows provide views out over the fields and lane.
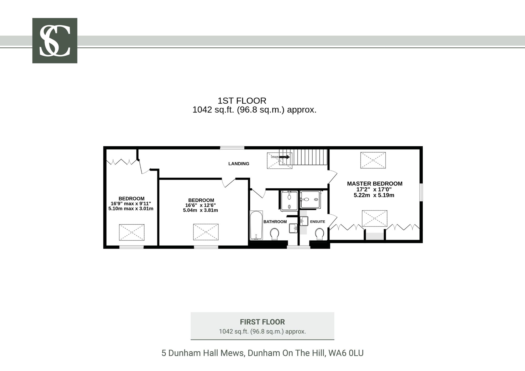
Ascend the stairs from the dining hall up to the first-floor landing, where plush carpet flowsunderfoot and light streams down through large roof lanterns along the ceiling.
Rest and refresh
To the left, tucked privately away, the master bedroom serves as a sanctuary for sweet dreams, suffused with light and a cheerful floral feature wall. Rustic beams retain the heritage of the home’s farming origins, balanced by the modern built-in storage, and dressing table thoughtfully situated beneath the large Velux window.
Freshen up in the spacious shower room ensuite, where beneath the wash basin, ample storage awaits in the vanity unit cupboards and drawers.
Returning along the landing, the family bathroom on the left, complete with a separate shower and bath, is perfectly positioned to serve the two guest bedrooms further along. The thoughtful layout of the bedrooms- spaced well apart - offers enhanced privacy for guests and is ideal for older children seeking independence.
OWNER QUOTE: “This is my favourite room; it has a really nice feel to it. It’s spacious, but quaint.”
Next door to the bathroom, windows at both floor and ceiling height fill the second bedroom with light, for an airy and inviting feel.
Tucked away at the end of the landing, built in wardrobes feature in the third bedroom, which is again a spacious double and brimming with light.
Sunshine and seclusion
Outside, the garden extends over two levels, with the upper tier inviting alfresco dining on the spacious patio, ideal for unwinding with a book, or soaking up the sun.
Below, the low-maintenance astro turf provides a lush, green space that stays accessible year-round - perfect for children's play and pet-friendly too. With only five homes nearby, the garden enjoys a secluded, tranquil feel, making it a peaceful, private retreat. Bathed in sunlight from early morning until 8pm, enjoy the sights and sounds of nature until late into the evening.
Out and about
Rural, but not remote, No. 5 Dunham Hall Mews offers the perfect balance of tranquillity and convenience, with walks on the doorstep and Helsby just five minutes away and both Frodsham and Chester reachable within ten.
Connect further afield by rail at Helsby Station, just two miles away, providing direct links to Chester, the North Wales coast, Manchester, Leeds, York and Liverpool. A local bus route runs by the end of the lane, en route to both Chester and Warrington.
Embrace the outdoors, with a myriad of quiet country lanes and scenic walking routes surrounding the area, with Mouldsworth around a 3.5 mile walk away. Quench your thirst after a walk with refreshments at The Goshawk pub.
Helsby Hill, just five minutes away, offers breathtaking views, while Helsby Golf Club is close by for those looking to enjoy a round.
Everyday essentials are easily accessible, with Tesco just a mile away whilst for more extensive shopping and entertainment, Cheshire Oaks is only a short drive.
Families are perfectly placed for an array of local schools, including Horn’s Mill Primary and Helsby High School, whilst nearby, the Boshaw Community Centre is on hand for hosting local events and gatherings.
A versatile and flexible home, suitable for retirees or a growing family in need of space alike, No. 5 Dunham Hall Mews provides the best of both worlds.
Disclaimer
The information Storeys of Cheshire has provided is for general informational purposes only and does not form part of any offer or contract. The agent has not tested any equipment or services and cannot verify their working order or suitability. Buyers should consult their solicitor or surveyor for verification. Photographs shown are for illustration purposes only and may not reflect the items included in the property sale. Please note that lifestyle descriptions are provided as a general indication. Regarding planning and building consents, buyers should conduct their own enquiries with the relevant authorities. All measurements are approximate. Properties are offered subject to contract, and neither Storeys of Cheshire nor its employees or associated partners have the authority to provide any representations or warranties.
Property Details
5 Dunham Hall Mews
With the great outdoors on your doorstep, experience the enchantment of rural living, at No. 5, Dunham Hall Mews, in Dunham-on-the-Hill.
Contemporary comfort with character
A family farm for generations, No. 5 is one of an exclusive collection of farm building conversions completed eight years ago, providing modern farmhouse living in the embrace of nature.
Rural, but not remote, just two miles from Helsby Station and its connections through Chester to the North Wales Coast, or into Manchester and the North West, No. 5, Dunham Hall Mews is a convenient country oasis.
With parking for two cars comfortably, the character of the home reveals itself upon arrival, with its rustic Cheshire brick charm.
A warm welcome
Stepping indoors, savour the spaciousness of the family kitchen, lined in large cream tiles and furnished in a contemporary farmhouse style, with plinth-lit cream cabinetry and drawers and an oak-topped central island breakfast bar set beneath a stylish suspended stripped bulb lighting feature.
A large double sink is practical for food prep, whilst an array of appliances including washing machine and tumble dryer, dishwasher, double oven and fridge freezer add ease to daily housework. Dine sociably at the breakfast bar with family seating for four, and a handy drinks fridge within the island.
Opening up from the kitchen, there is a useful pantry, offering ample storage in the floor and wall cupboards, with a large boiler cupboard the perfect proportions for stashing a vacuum cleaner and ironing board. Off the pantry there is also a handy downstairs WC.
With spacious rooms providing pockets of privacy and space to entertain, off the kitchen, discover the lounge, a cosy family room carpeted in grey, also serving as a home office.
Entertain and unwind
Entertain family and friends in the dining hall opening up to the right of the kitchen, a distinct space yet easily accessible when hosting. Light and bright, with blind-fitted windows to the front and rear, this room can be directly accessed from the garden, making it ideal for summer dining out in the garden.
Double doors connect through into the main living room, a light and bright haven, with plenty of space for sofas and guests. Toasty warmth fills the room from the gas log burner, whilst windows provide views out over the fields and lane.
Ascend the stairs from the dining hall up to the first-floor landing, where plush carpet flowsunderfoot and light streams down through large roof lanterns along the ceiling.
Rest and refresh
To the left, tucked privately away, the master bedroom serves as a sanctuary for sweet dreams, suffused with light and a cheerful floral feature wall. Rustic beams retain the heritage of the home’s farming origins, balanced by the modern built-in storage, and dressing table thoughtfully situated beneath the large Velux window.
Freshen up in the spacious shower room ensuite, where beneath the wash basin, ample storage awaits in the vanity unit cupboards and drawers.
Returning along the landing, the family bathroom on the left, complete with a separate shower and bath, is perfectly positioned to serve the two guest bedrooms further along. The thoughtful layout of the bedrooms- spaced well apart - offers enhanced privacy for guests and is ideal for older children seeking independence.
OWNER QUOTE: “This is my favourite room; it has a really nice feel to it. It’s spacious, but quaint.”
Next door to the bathroom, windows at both floor and ceiling height fill the second bedroom with light, for an airy and inviting feel.
Tucked away at the end of the landing, built in wardrobes feature in the third bedroom, which is again a spacious double and brimming with light.
Sunshine and seclusion
Outside, the garden extends over two levels, with the upper tier inviting alfresco dining on the spacious patio, ideal for unwinding with a book, or soaking up the sun.
Below, the low-maintenance astro turf provides a lush, green space that stays accessible year-round - perfect for children's play and pet-friendly too. With only five homes nearby, the garden enjoys a secluded, tranquil feel, making it a peaceful, private retreat. Bathed in sunlight from early morning until 8pm, enjoy the sights and sounds of nature until late into the evening.
Out and about
Rural, but not remote, No. 5 Dunham Hall Mews offers the perfect balance of tranquillity and convenience, with walks on the doorstep and Helsby just five minutes away and both Frodsham and Chester reachable within ten.
Connect further afield by rail at Helsby Station, just two miles away, providing direct links to Chester, the North Wales coast, Manchester, Leeds, York and Liverpool. A local bus route runs by the end of the lane, en route to both Chester and Warrington.
Embrace the outdoors, with a myriad of quiet country lanes and scenic walking routes surrounding the area, with Mouldsworth around a 3.5 mile walk away. Quench your thirst after a walk with refreshments at The Goshawk pub.
Helsby Hill, just five minutes away, offers breathtaking views, while Helsby Golf Club is close by for those looking to enjoy a round.
Everyday essentials are easily accessible, with Tesco just a mile away whilst for more extensive shopping and entertainment, Cheshire Oaks is only a short drive.
Families are perfectly placed for an array of local schools, including Horn’s Mill Primary and Helsby High School, whilst nearby, the Boshaw Community Centre is on hand for hosting local events and gatherings.
A versatile and flexible home, suitable for retirees or a growing family in need of space alike, No. 5 Dunham Hall Mews provides the best of both worlds.
Disclaimer
The information Storeys of Cheshire has provided is for general informational purposes only and does not form part of any offer or contract. The agent has not tested any equipment or services and cannot verify their working order or suitability. Buyers should consult their solicitor or surveyor for verification. Photographs shown are for illustration purposes only and may not reflect the items included in the property sale. Please note that lifestyle descriptions are provided as a general indication. Regarding planning and building consents, buyers should conduct their own enquiries with the relevant authorities. All measurements are approximate. Properties are offered subject to contract, and neither Storeys of Cheshire nor its employees or associated partners have the authority to provide any representations or warranties.
Request A Viewing At
Number 5
Please read the Storeys Of Cheshire Privacy Policy.
This site is protected by reCAPTCHA and the Google Privacy Policy and Terms of Service apply.











































