Number 364
Chester Road, Hartford
Offers Over £550,000
Property Overview
ADDRESS
Number 364, Chester Road, Hartford, CW8 2AQ
BEDROOMS
3
BATHROOMS
2
Property Overview
ADDRESS
BEDROOMS
BATHROOMS
Property Details
Property
Details
A charming and extended semi-detached property set in the heart of Hartford
Experience the elegance of Edwardian architecture alongside the ease modern living at No. 364, Chester Road, a family home with flow, backing onto fields and footpaths on the leafy fringes of Hartford.
Set well back from Chester Road, the long gravel driveway draws the home away from the comings and goings of the wider world, creating a clear sense of separation before even setting foot through the front door. Parking is plentiful, with space for several cars and room to turn comfortably, ideal for school runs or morning commutes.
Character and comfort
Handsomely Edwardian in its timbered gable façade and decorative brickwork, No. 364 is a home renewed and revived for modern living. Upstairs the bedrooms have been re-carpeted underfoot with walls refreshed in calm, neutral shades.
Practical upgrades sit neatly behind the scenes: oversized modern radiators instil proper warmth, with repairs to both the roof and chimney undertaken and ongoing maintenance attended to. Even the forward-thinking details are in place, solar panels have been installed, with a battery system discreetly housed on the first-floor landing beneath the second staircase, while an EV charging point has also been installed.
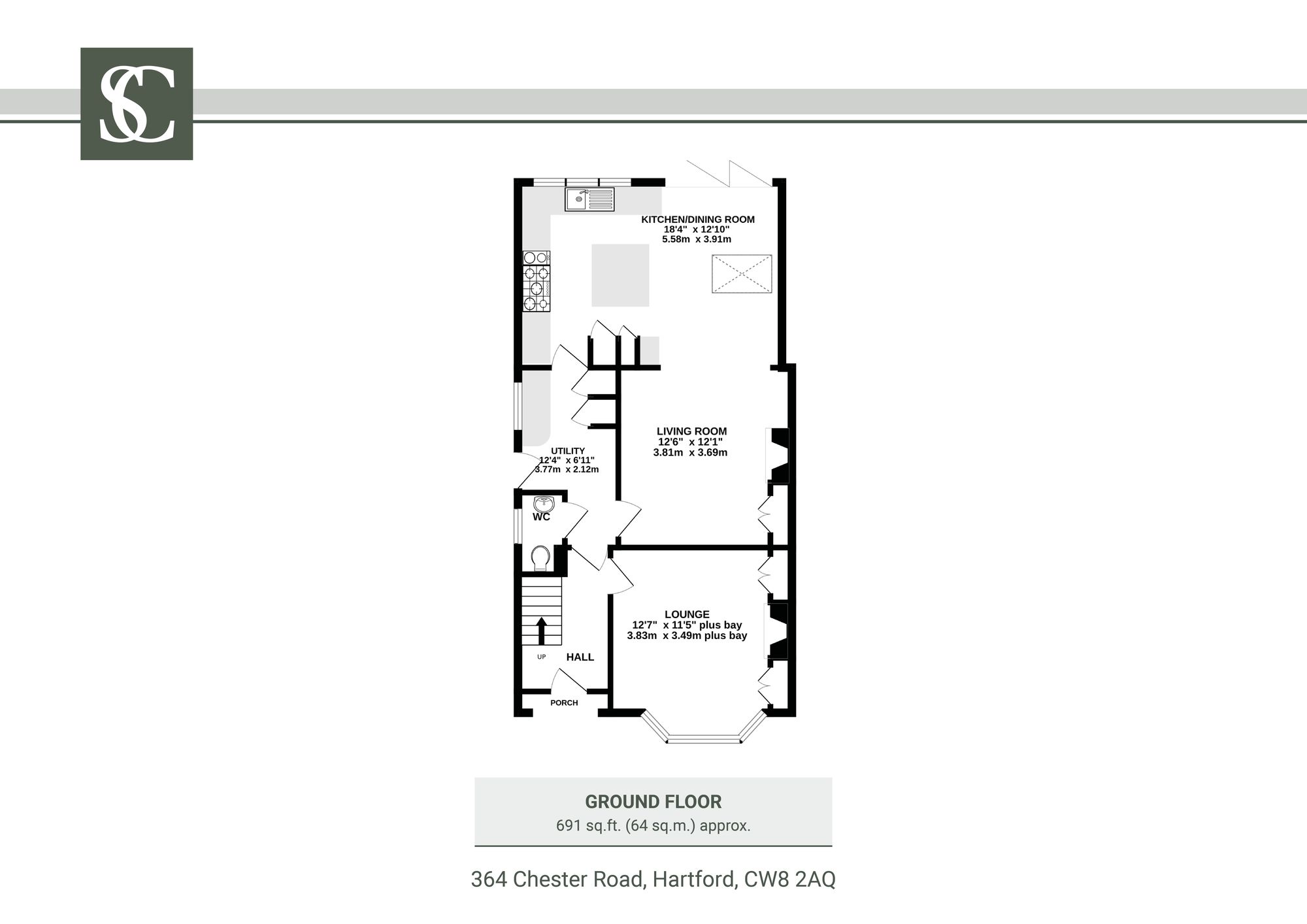
From beneath the period archway of the Cheshire brick porch, step through into the warmth and welcome of the entrance hallway, where the calm settles the moment the door closes.
Geometric, modern black and white flooring balances the period panelled doors opening up invitingly from the hallway.
OWNER QUOTE: “It’s the calmest room in the home. You cannot hear a thing even though it’s at the front.”
Peaceful places
Through the door to the right peace and light await in the lounge, currently used as a quiet library room by the current owners, and home to their piano. The multi-pane bay window filters sunlight on brighter days, allowing light and shade to drift gently across the room as the sun moves, lending the space a calm quality, perfect for picking up a book and reading. Cream carpet underfoot adds a note of cosiness, amplified by the green and white décor,alongside original details including cornicing and picture rails. Warmth emanates from the gas fire set within its period surround, flanked by shelved alcoves and built-in cabinetry offering space for treasured possessions, a natural Edwardian design motif found throughout the home.
A home with phenomenal flow and unexpected depth, ahead, the rooms branch left and right,later rejoining at the rear.
To the left, the understairs space has been cleverly converted into a downstairs cloakroom with wash basin and WC, illuminated by an obscured glass window to the side. Also on this side of the hall, the long utility room with plenty of storage and plumbing for a washing machine and dryer, draws in an abundance of light from the side window. A handy entrance when returning from dog walks in the nearby countryside, the utility room offers side access to the home, perfect for muddy boots and paws.
OWNER QUOTE: “We love that the ground floor feels open for entertaining, but the doors mean it never has to feel exposed — it can be closed off and cosy when needed.”
Inviting spaces
Turning right from the hallway, hunker down in the living room, the heart of the home, wherewooden flooring flows out underfoot. Cosy and warm, a log-burning stove infuses warmth on winter days in this ideal family space, where a traditional built-in cupboard serves as the perfect place to stash rainy day board games, and a television point is on hand for afternoon movie marathons.
Light drifts through from the dining kitchen at the far end, which opens up and out from the living room and where large Velux windows and bifolding doors invite the outdoors in. With abundant space for a dining table, the doors open to a large, paved patio, beyond which stepping stones direct the eye along the lengthy lawn to a pergola archway and the endless countryside in the distance.
Entertain or unwind
Classic country vibes emanate from the kitchen, where inlaid cream cabinetry topped in wooden worktops offers abundant preparation and storage space, with a devoted pull-outpantry cupboard. Cook up a feast for family and friends using the double oven Rangemaster,set snugly before its metro tiled splashback. Sockets feature throughout – in the island and also the countertops – a feature of convenience in an era of bread makers and air fryers. Rinse the plates at the large Belfast sink with chef’s tap before popping them into the new Bosch dishwasher. The large full height fridge can be found next to the pull-out pantry, while the freezer awaits in the connecting utility room, which also leads back through to the entrance hallway.
OWNER QUOTE: “The kitchen is a great room for entertaining and serving up drinks and food at the island.”
From the entrance hallway, ascend the stairs to the first-floor landing, where light pours in through the tall window at the top of the staircase.
Tucked to the front of the landing, the family bathroom is a bright and neutral space in which to refresh and revive, furnished with a P-shaped bath with drench shower above, wash basin, WC and modern heated ladder towel rail.
And so to bed…
Character and space are hallmarks of this home, with the front bedroom a large king size room featuring an ornamental period fireplace, while the wide 1900s bay window with divided panes brings in an even, distilled quality of daylight.
Moving along the landing, with glorious views of the garden and countryside a secondbountiful bedroom currently serves as the master, offering ample space for a king size bed.
OWNER QUOTE: ““The view from the bedroom is lovely. In spring and summer the garden really comes into its own, with flowers out, trees in leaf and birds everywhere.”
To the rear, the first floor opens up, with a door opening to reveal an inner landing area, where there is storage space or room for a small desk and chair beneath the staircase. Ahead, a large study overlooks the garden, carpeted and brimming with light, offering great versatility to serve as a third king size bedroom.
Ascend the stairs to the second floor, where another light filled room nestles within the eaves. Storage is abundant and, though currently used as an office, with its own private en suite withshower, wash basin and WC, this could serve as a peaceful and private bedroom perfect for an older teenager, with plenty of space for a king size bed.
Garden meets horizon
Stepping out from the kitchen-diner, a broad slate terrace provides an easy, sociable space for barbecues, outdoor dining or relaxed seating through the warmer months. From here, shallow steps lead down into a long, open lawn, secure and level enough for games and play, and unfolding in a series of distinct garden rooms.
Gates guide the way through to further sections, including a raised platform housing the hot tub, pockets of established trees and a pond that provides a home for wildlife. Elsewhere, a garden shed offers storage for garden furniture alongside a sunken firepit seating area, the perfect place to stargaze beside the glowing embers on crisp winter evenings and balmy summer nights.
Out and about
Beyond the home, the sense of space continues. The long rear garden opens directly onto farmland and public footpaths, with open views stretching for around 800 metres and the freedom to walk for miles without retracing the same route.
A setting that feels fittingly rural, yet No. 364, Chester Road remains firmly connected to village life on the edge of Hartford, with everyday conveniences reassuringly close by.
Call in at local pub The Coachman, just a three-minute walk away, while equidistant, Hartford train station, offers direct services towards Liverpool. For travel out and about, a bus stop is mere moments from the front door providing easy routes into Chester, while road access is equally straightforward, with swift connections to the A556 without getting caught up in school-run traffic through the village centre.
Schooling is second to none, with all the Hartford primaries, secondaries and independents within easy reach.
Hartford itself offers a well-rounded mix of independent shops and amenities, including a popular butcher, deli and sandwich shop.
Designed for family life, combining space, views, versatility and easy movement indoors and out, No. 364, Chester Road, is, simply put, how a home should be.
Disclaimer
The information Storeys of Cheshire has provided is for general informational purposes only and does not form part of any offer or contract. The agent has not tested any equipment or services and cannot verify their working order or suitability. Buyers should consult their solicitor or surveyor for verification. Photographs shown are for illustration purposes only and may not reflect the items included in the property sale. Please note that lifestyle descriptions are provided as a general indication. Regarding planning and building consents, buyers should conduct their own enquiries with the relevant authorities. All measurements are approximate. Properties are offered subject to contract, and neither Storeys of Cheshire nor its employees or associated partners have the authority to provide any representations or warranties.
Property Details
A charming and extended semi-detached property set in the heart of Hartford
Experience the elegance of Edwardian architecture alongside the ease modern living at No. 364, Chester Road, a family home with flow, backing onto fields and footpaths on the leafy fringes of Hartford.
Set well back from Chester Road, the long gravel driveway draws the home away from the comings and goings of the wider world, creating a clear sense of separation before even setting foot through the front door. Parking is plentiful, with space for several cars and room to turn comfortably, ideal for school runs or morning commutes.
Character and comfort
Handsomely Edwardian in its timbered gable façade and decorative brickwork, No. 364 is a home renewed and revived for modern living. Upstairs the bedrooms have been re-carpeted underfoot with walls refreshed in calm, neutral shades.
Practical upgrades sit neatly behind the scenes: oversized modern radiators instil proper warmth, with repairs to both the roof and chimney undertaken and ongoing maintenance attended to. Even the forward-thinking details are in place, solar panels have been installed, with a battery system discreetly housed on the first-floor landing beneath the second staircase, while an EV charging point has also been installed.
From beneath the period archway of the Cheshire brick porch, step through into the warmth and welcome of the entrance hallway, where the calm settles the moment the door closes.
Geometric, modern black and white flooring balances the period panelled doors opening up invitingly from the hallway.
OWNER QUOTE: “It’s the calmest room in the home. You cannot hear a thing even though it’s at the front.”
Peaceful places
Through the door to the right peace and light await in the lounge, currently used as a quiet library room by the current owners, and home to their piano. The multi-pane bay window filters sunlight on brighter days, allowing light and shade to drift gently across the room as the sun moves, lending the space a calm quality, perfect for picking up a book and reading. Cream carpet underfoot adds a note of cosiness, amplified by the green and white décor,alongside original details including cornicing and picture rails. Warmth emanates from the gas fire set within its period surround, flanked by shelved alcoves and built-in cabinetry offering space for treasured possessions, a natural Edwardian design motif found throughout the home.
A home with phenomenal flow and unexpected depth, ahead, the rooms branch left and right,later rejoining at the rear.
To the left, the understairs space has been cleverly converted into a downstairs cloakroom with wash basin and WC, illuminated by an obscured glass window to the side. Also on this side of the hall, the long utility room with plenty of storage and plumbing for a washing machine and dryer, draws in an abundance of light from the side window. A handy entrance when returning from dog walks in the nearby countryside, the utility room offers side access to the home, perfect for muddy boots and paws.
OWNER QUOTE: “We love that the ground floor feels open for entertaining, but the doors mean it never has to feel exposed — it can be closed off and cosy when needed.”
Inviting spaces
Turning right from the hallway, hunker down in the living room, the heart of the home, wherewooden flooring flows out underfoot. Cosy and warm, a log-burning stove infuses warmth on winter days in this ideal family space, where a traditional built-in cupboard serves as the perfect place to stash rainy day board games, and a television point is on hand for afternoon movie marathons.
Light drifts through from the dining kitchen at the far end, which opens up and out from the living room and where large Velux windows and bifolding doors invite the outdoors in. With abundant space for a dining table, the doors open to a large, paved patio, beyond which stepping stones direct the eye along the lengthy lawn to a pergola archway and the endless countryside in the distance.
Entertain or unwind
Classic country vibes emanate from the kitchen, where inlaid cream cabinetry topped in wooden worktops offers abundant preparation and storage space, with a devoted pull-outpantry cupboard. Cook up a feast for family and friends using the double oven Rangemaster,set snugly before its metro tiled splashback. Sockets feature throughout – in the island and also the countertops – a feature of convenience in an era of bread makers and air fryers. Rinse the plates at the large Belfast sink with chef’s tap before popping them into the new Bosch dishwasher. The large full height fridge can be found next to the pull-out pantry, while the freezer awaits in the connecting utility room, which also leads back through to the entrance hallway.
OWNER QUOTE: “The kitchen is a great room for entertaining and serving up drinks and food at the island.”
From the entrance hallway, ascend the stairs to the first-floor landing, where light pours in through the tall window at the top of the staircase.
Tucked to the front of the landing, the family bathroom is a bright and neutral space in which to refresh and revive, furnished with a P-shaped bath with drench shower above, wash basin, WC and modern heated ladder towel rail.
And so to bed…
Character and space are hallmarks of this home, with the front bedroom a large king size room featuring an ornamental period fireplace, while the wide 1900s bay window with divided panes brings in an even, distilled quality of daylight.
Moving along the landing, with glorious views of the garden and countryside a secondbountiful bedroom currently serves as the master, offering ample space for a king size bed.
OWNER QUOTE: ““The view from the bedroom is lovely. In spring and summer the garden really comes into its own, with flowers out, trees in leaf and birds everywhere.”
To the rear, the first floor opens up, with a door opening to reveal an inner landing area, where there is storage space or room for a small desk and chair beneath the staircase. Ahead, a large study overlooks the garden, carpeted and brimming with light, offering great versatility to serve as a third king size bedroom.
Ascend the stairs to the second floor, where another light filled room nestles within the eaves. Storage is abundant and, though currently used as an office, with its own private en suite withshower, wash basin and WC, this could serve as a peaceful and private bedroom perfect for an older teenager, with plenty of space for a king size bed.
Garden meets horizon
Stepping out from the kitchen-diner, a broad slate terrace provides an easy, sociable space for barbecues, outdoor dining or relaxed seating through the warmer months. From here, shallow steps lead down into a long, open lawn, secure and level enough for games and play, and unfolding in a series of distinct garden rooms.
Gates guide the way through to further sections, including a raised platform housing the hot tub, pockets of established trees and a pond that provides a home for wildlife. Elsewhere, a garden shed offers storage for garden furniture alongside a sunken firepit seating area, the perfect place to stargaze beside the glowing embers on crisp winter evenings and balmy summer nights.
Out and about
Beyond the home, the sense of space continues. The long rear garden opens directly onto farmland and public footpaths, with open views stretching for around 800 metres and the freedom to walk for miles without retracing the same route.
A setting that feels fittingly rural, yet No. 364, Chester Road remains firmly connected to village life on the edge of Hartford, with everyday conveniences reassuringly close by.
Call in at local pub The Coachman, just a three-minute walk away, while equidistant, Hartford train station, offers direct services towards Liverpool. For travel out and about, a bus stop is mere moments from the front door providing easy routes into Chester, while road access is equally straightforward, with swift connections to the A556 without getting caught up in school-run traffic through the village centre.
Schooling is second to none, with all the Hartford primaries, secondaries and independents within easy reach.
Hartford itself offers a well-rounded mix of independent shops and amenities, including a popular butcher, deli and sandwich shop.
Designed for family life, combining space, views, versatility and easy movement indoors and out, No. 364, Chester Road, is, simply put, how a home should be.
Disclaimer
The information Storeys of Cheshire has provided is for general informational purposes only and does not form part of any offer or contract. The agent has not tested any equipment or services and cannot verify their working order or suitability. Buyers should consult their solicitor or surveyor for verification. Photographs shown are for illustration purposes only and may not reflect the items included in the property sale. Please note that lifestyle descriptions are provided as a general indication. Regarding planning and building consents, buyers should conduct their own enquiries with the relevant authorities. All measurements are approximate. Properties are offered subject to contract, and neither Storeys of Cheshire nor its employees or associated partners have the authority to provide any representations or warranties.
Area Guide Video
Request A Viewing At
Number 364
Please read the Storeys Of Cheshire Privacy Policy.
This site is protected by reCAPTCHA and the Google Privacy Policy and Terms of Service apply.











































