Number 14
Park Avenue, Tattenhall
Offers Over £735,000
Property Overview
ADDRESS
Number 14, Park Avenue, Tattenhall, CH3 9QN
BEDROOMS
5
BATHROOMS
3
Property Overview
ADDRESS
BEDROOMS
BATHROOMS
Property Details
Property
Details
An immaculately finished family home set in a beautiful location in Tattenhall
On the periphery of town and countryside, savour a sample of rural living with the best of both worlds, at No. 14, Park Avenue.
Where town meets country
Ideal for those seeking a gentle introduction to country living without sacrificing day-to-day convenience, No. 14 Park Avenue sits quietly at the far corner of a small development, chosen for its privacy. Unoverlooked and just a five-minute walk from the primary school and bus stop, No. 14, Park Avenue is a mere ten minutes from the village centre, and moments from open countryside.
A double driveway provides everyday parking, with easy on-street space opposite for visiting family and friends. Neat and low maintenance, the current front garden, edged with clipped hedging, sets a calm and traditional tone for this timeless family home, also offering the flexibility to adapt for additional parking if ever required.
A warm welcome
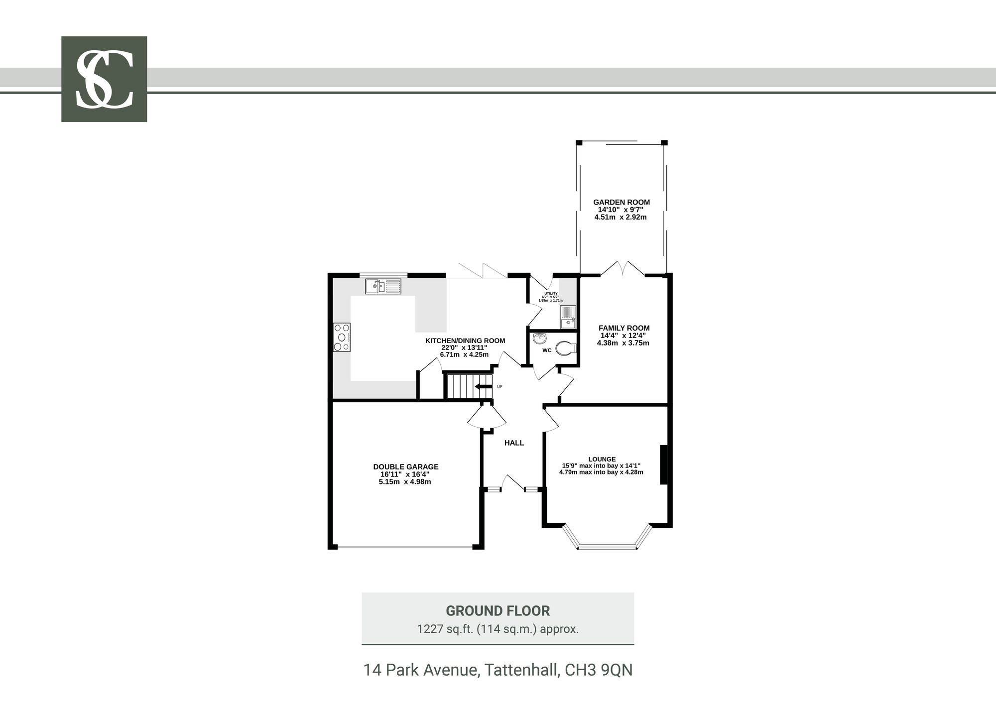
Step inside and into the entrance hall, acting as a broad, airy hub from which the main rooms radiate. To the left, there is direct internal access to the integral double garage, a practical everyday feature that also offers clear potential for conversion, as seen elsewhere on the development, should additional accommodation or workspace ever be required.
Relaxation awaits to the right, in the cosily carpeted bay fronted lounge. An inviting space, the large window draws in natural light, offering views across the enclosed front garden. One of two distinct living spaces within the home, the lounge works beautifully as a quieter sitting room, while allowing teenagers or guests their own space elsewhere. Charcoal-toned walls create an intimate feel, complemented by a glass-fronted, log-effect fire that can be lit at the touch of a button, bringing an inviting sense of warmth on darker winter days.
Family time
Next door to the right, the family room sits to the rear of the home, a cosy, modern space at the heart of the home, dressed in neutral tones with rich blue-green feature walls, one of which features bespoke fitted shelving, cabinetry and media wall fittings for a television alongside space for an electric log-burning stove. The ideal space to come together with the family, luxury tiled flooring is practical underfoot, making it ideal for everyday living, when flowing in and out from the garden room beyond.
Beyond the family room, light flows in through the stunningly-designed glass garden room – extending the living space into the garden, with sliding glass doors that tuck neatly away on three sides to create an effortless connection outdoors.
From indoors to out
Overhead, a louvred roof can be opened or closed as the weather dictates, remaining fully watertight when needed and allowing the space to be enjoyed year-round making it ideal for entertaining. Open the doors wide on balmy summer days and blur the boundary between indoor and outdoor living.
OWNER QUOTE: “It’s made us use the garden tenfold more – even in winter. My favourite time of year is April; you can sit in here with a book listening to the pitter-patter of rain.”
Wine and dine
Directly ahead from the entrance hall the kitchen-dining room serves as the heart of the home. Pause at the peninsula for a glass of wine and conversation with the chef, before sitting down at the dining table where bi-folding doors open to connect with the patio and garden beyond.
The ideal modern family room, storage is plentiful with an array of integrated appliances including a double fridge, double freezer, dishwasher, ceramic hob and double oven. Beneath the stairs, pantry storage is available in the deep, shelved cupboard.
Also providing storage space, alongside plumbing for a washing machine, is the handy utility room, opening up from the kitchen and also connecting out to the garden.
Bedtime beckons
Returning to the entrance hall, a handy cloakroom features a WC and wash basin, while stairs lead up to the first-floor landing.
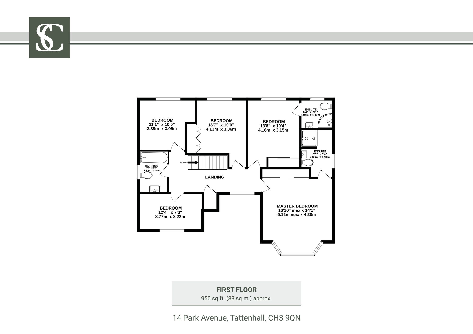
Warmly dressed in soft, serene, earthy shades and carpeted underfoot, the landing provides access to five great sized bedrooms, each designed with a recessed capacity for fitted wardrobes.
Turning right, to the rear, bedroom four is a guest double, with feature wall and alcove ideal for wardrobes. Peaceful and quiet, leafy views extend out to the garden. Previously serving as a playroom, this light-filled room is currently a study.
Directly ahead from the stairs lies the family bathroom, furnished with a shower above the bath and timelessly tiled in grey, also featuring wash basin and WC.
Turning right, overlooking the front of the home, bedroom five, dressed in grey-green is a peaceful retreat. Currently used as an office, work from home in quiet contentment, tucked away from the main flow of bedrooms.
Next to the office, there is further storage to be found in the linen closet, whilst a little further along the landing, to the left lies bedroom three.
An elegant and serene space, furnished with fitted wardrobes courtesy ofCheshire Joinery, with peaceful views of the garden.
Self-contained and ideal when the in-laws come to stay, cashmere tones offer a refined finish to the guest bedroom, amplifying the room’s bright airiness. With sliding door fitted wardrobes, this quiet and peaceful second bedroom also overlooks the garden at the rear and features its own shower room en suite.
At the end of a busy day, retreat to a cocooning sense of calm in the master bedroom, where deep blue walls are balanced by the spaciousness of the room and light sweeping in through a broad bay window overlooking the front.
With plenty of space for a super-king bed and larger-than-average bedside tables, a full-length dresser and an ottoman, the master bedroom retains its roomy open ambience.
Fitted Hammonds wardrobes line one wall, providing plenty of storage and retaining an uncluttered, tidy vibe, while views across the surrounding trees can be enjoyed from the bed itself.
Peaceful and private, in lieu of the home’s proximity to the village, savour the tranquillity of the home, with the silence broken only by the dawn chorus, the inimitable call of pheasants and the rhythmic tap of a woodpecker.
Freshen up in the contemporary wet room en suite, with wash basin, WC and heated towel radiator.
Garden delights
Outside, the south-facing garden has matured while retaining its low-maintenance ease.
Bordered by established neighbouring gardens and open outlooks, the garden at the rear is both secluded and not overlooked. One of the defining features is the sleek, glazed garden room, introduced to extend the use of the garden throughout the year. Fully demountable rather than a permanent fixture, it creates a sheltered place to sit and enjoy the garden whatever the season, becoming a natural vantage point from which to appreciate the outdoors.
The lawn has been laid with artificial grass, chosen for its practicality during years with young children and pets, making it clean, durable and usable all year round, whether for paddling pools, play or simply running in and out without the worry of trailing the outdoors in. For the green-fingered, borders edge the garden with planting, leaving scope for keen gardeners to add their own touches.
OWNER QUOTE: “We love how the garden changes with the seasons - open in winter, full of birds and squirrels in spring and summer. It’s a joy just to sit and watch it evolve.”
Out and about
For those relishing a taste of country living, No. 14 Park Avenue provides the perfect introduction, with Tattenhall offering a balance between village life and open countryside. Within minutes, footpaths and lanes lead out towards rolling landscapes, with Bulkeley Hill just a short walk or cycle away and Bickerton Hill also close by, ideal for runners, cyclists and hikers. Despite this rural feel, Chester is also close at hand, enabling you to dip into city living in a heartbeat.
The village itself is famously well served, particularly by pubs and eateries, home to The Letters Inn, a traditional local with a long-standing following, while The Sportsman lives up to its name with food and a pool table, and The Bear & Ragged Staff brings a more contemporary edge, part gastro pub, part boutique stay - ideal for dinner, drinks or accommodating visiting family.
Tattenhall’s high street covers far more than most villages its size, with a Spar, café, dentist, pharmacy, doctors’ surgery, physio centre, hairdressers, barbers and dog groomers all within walking distance. There’s also a gym at the cricket ground, Pilates close by and a well-regarded restaurant within the nearby retirement village.
With its strong sense of community, there is a natural attraction amongst families, drawn by Tattenhall’s safe, sociable feel making it the kind of village people tend to stay in, rather than pass through.
Quiet, cosy and well balanced, No. 14 Park Avenue brings rural living within easy reach of the tried-and-tested city dweller. Immaculate yet homely, with a subtle luxury edge, it balances space, privacy and village life — and stands ready for its next chapter.
Disclaimer
The information Storeys of Cheshire has provided is for general informational purposes only and does not form part of any offer or contract. The agent has not tested any equipment or services and cannot verify their working order or suitability. Buyers should consult their solicitor or surveyor for verification. Photographs shown are for illustration purposes only and may not reflect the items included in the property sale. Please note that lifestyle descriptions are provided as a general indication. Regarding planning and building consents, buyers should conduct their own enquiries with the relevant authorities. All measurements are approximate. Properties are offered subject to contract, and neither Storeys of Cheshire nor its employees or associated partners have the authority to provide any representations or warranties.
Property Details
An immaculately finished family home set in a beautiful location in Tattenhall
On the periphery of town and countryside, savour a sample of rural living with the best of both worlds, at No. 14, Park Avenue.
Where town meets country
Ideal for those seeking a gentle introduction to country living without sacrificing day-to-day convenience, No. 14 Park Avenue sits quietly at the far corner of a small development, chosen for its privacy. Unoverlooked and just a five-minute walk from the primary school and bus stop, No. 14, Park Avenue is a mere ten minutes from the village centre, and moments from open countryside.
A double driveway provides everyday parking, with easy on-street space opposite for visiting family and friends. Neat and low maintenance, the current front garden, edged with clipped hedging, sets a calm and traditional tone for this timeless family home, also offering the flexibility to adapt for additional parking if ever required.
A warm welcome
Step inside and into the entrance hall, acting as a broad, airy hub from which the main rooms radiate. To the left, there is direct internal access to the integral double garage, a practical everyday feature that also offers clear potential for conversion, as seen elsewhere on the development, should additional accommodation or workspace ever be required.
Relaxation awaits to the right, in the cosily carpeted bay fronted lounge. An inviting space, the large window draws in natural light, offering views across the enclosed front garden. One of two distinct living spaces within the home, the lounge works beautifully as a quieter sitting room, while allowing teenagers or guests their own space elsewhere. Charcoal-toned walls create an intimate feel, complemented by a glass-fronted, log-effect fire that can be lit at the touch of a button, bringing an inviting sense of warmth on darker winter days.
Family time
Next door to the right, the family room sits to the rear of the home, a cosy, modern space at the heart of the home, dressed in neutral tones with rich blue-green feature walls, one of which features bespoke fitted shelving, cabinetry and media wall fittings for a television alongside space for an electric log-burning stove. The ideal space to come together with the family, luxury tiled flooring is practical underfoot, making it ideal for everyday living, when flowing in and out from the garden room beyond.
Beyond the family room, light flows in through the stunningly-designed glass garden room – extending the living space into the garden, with sliding glass doors that tuck neatly away on three sides to create an effortless connection outdoors.
From indoors to out
Overhead, a louvred roof can be opened or closed as the weather dictates, remaining fully watertight when needed and allowing the space to be enjoyed year-round making it ideal for entertaining. Open the doors wide on balmy summer days and blur the boundary between indoor and outdoor living.
OWNER QUOTE: “It’s made us use the garden tenfold more – even in winter. My favourite time of year is April; you can sit in here with a book listening to the pitter-patter of rain.”
Wine and dine
Directly ahead from the entrance hall the kitchen-dining room serves as the heart of the home. Pause at the peninsula for a glass of wine and conversation with the chef, before sitting down at the dining table where bi-folding doors open to connect with the patio and garden beyond.
The ideal modern family room, storage is plentiful with an array of integrated appliances including a double fridge, double freezer, dishwasher, ceramic hob and double oven. Beneath the stairs, pantry storage is available in the deep, shelved cupboard.
Also providing storage space, alongside plumbing for a washing machine, is the handy utility room, opening up from the kitchen and also connecting out to the garden.
Bedtime beckons
Returning to the entrance hall, a handy cloakroom features a WC and wash basin, while stairs lead up to the first-floor landing.
Warmly dressed in soft, serene, earthy shades and carpeted underfoot, the landing provides access to five great sized bedrooms, each designed with a recessed capacity for fitted wardrobes.
Turning right, to the rear, bedroom four is a guest double, with feature wall and alcove ideal for wardrobes. Peaceful and quiet, leafy views extend out to the garden. Previously serving as a playroom, this light-filled room is currently a study.
Directly ahead from the stairs lies the family bathroom, furnished with a shower above the bath and timelessly tiled in grey, also featuring wash basin and WC.
Turning right, overlooking the front of the home, bedroom five, dressed in grey-green is a peaceful retreat. Currently used as an office, work from home in quiet contentment, tucked away from the main flow of bedrooms.
Next to the office, there is further storage to be found in the linen closet, whilst a little further along the landing, to the left lies bedroom three.
An elegant and serene space, furnished with fitted wardrobes courtesy ofCheshire Joinery, with peaceful views of the garden.
Self-contained and ideal when the in-laws come to stay, cashmere tones offer a refined finish to the guest bedroom, amplifying the room’s bright airiness. With sliding door fitted wardrobes, this quiet and peaceful second bedroom also overlooks the garden at the rear and features its own shower room en suite.
At the end of a busy day, retreat to a cocooning sense of calm in the master bedroom, where deep blue walls are balanced by the spaciousness of the room and light sweeping in through a broad bay window overlooking the front.
With plenty of space for a super-king bed and larger-than-average bedside tables, a full-length dresser and an ottoman, the master bedroom retains its roomy open ambience.
Fitted Hammonds wardrobes line one wall, providing plenty of storage and retaining an uncluttered, tidy vibe, while views across the surrounding trees can be enjoyed from the bed itself.
Peaceful and private, in lieu of the home’s proximity to the village, savour the tranquillity of the home, with the silence broken only by the dawn chorus, the inimitable call of pheasants and the rhythmic tap of a woodpecker.
Freshen up in the contemporary wet room en suite, with wash basin, WC and heated towel radiator.
Garden delights
Outside, the south-facing garden has matured while retaining its low-maintenance ease.
Bordered by established neighbouring gardens and open outlooks, the garden at the rear is both secluded and not overlooked. One of the defining features is the sleek, glazed garden room, introduced to extend the use of the garden throughout the year. Fully demountable rather than a permanent fixture, it creates a sheltered place to sit and enjoy the garden whatever the season, becoming a natural vantage point from which to appreciate the outdoors.
The lawn has been laid with artificial grass, chosen for its practicality during years with young children and pets, making it clean, durable and usable all year round, whether for paddling pools, play or simply running in and out without the worry of trailing the outdoors in. For the green-fingered, borders edge the garden with planting, leaving scope for keen gardeners to add their own touches.
OWNER QUOTE: “We love how the garden changes with the seasons - open in winter, full of birds and squirrels in spring and summer. It’s a joy just to sit and watch it evolve.”
Out and about
For those relishing a taste of country living, No. 14 Park Avenue provides the perfect introduction, with Tattenhall offering a balance between village life and open countryside. Within minutes, footpaths and lanes lead out towards rolling landscapes, with Bulkeley Hill just a short walk or cycle away and Bickerton Hill also close by, ideal for runners, cyclists and hikers. Despite this rural feel, Chester is also close at hand, enabling you to dip into city living in a heartbeat.
The village itself is famously well served, particularly by pubs and eateries, home to The Letters Inn, a traditional local with a long-standing following, while The Sportsman lives up to its name with food and a pool table, and The Bear & Ragged Staff brings a more contemporary edge, part gastro pub, part boutique stay - ideal for dinner, drinks or accommodating visiting family.
Tattenhall’s high street covers far more than most villages its size, with a Spar, café, dentist, pharmacy, doctors’ surgery, physio centre, hairdressers, barbers and dog groomers all within walking distance. There’s also a gym at the cricket ground, Pilates close by and a well-regarded restaurant within the nearby retirement village.
With its strong sense of community, there is a natural attraction amongst families, drawn by Tattenhall’s safe, sociable feel making it the kind of village people tend to stay in, rather than pass through.
Quiet, cosy and well balanced, No. 14 Park Avenue brings rural living within easy reach of the tried-and-tested city dweller. Immaculate yet homely, with a subtle luxury edge, it balances space, privacy and village life — and stands ready for its next chapter.
Disclaimer
The information Storeys of Cheshire has provided is for general informational purposes only and does not form part of any offer or contract. The agent has not tested any equipment or services and cannot verify their working order or suitability. Buyers should consult their solicitor or surveyor for verification. Photographs shown are for illustration purposes only and may not reflect the items included in the property sale. Please note that lifestyle descriptions are provided as a general indication. Regarding planning and building consents, buyers should conduct their own enquiries with the relevant authorities. All measurements are approximate. Properties are offered subject to contract, and neither Storeys of Cheshire nor its employees or associated partners have the authority to provide any representations or warranties.
Request A Viewing At
Number 14
Please read the Storeys Of Cheshire Privacy Policy.
This site is protected by reCAPTCHA and the Google Privacy Policy and Terms of Service apply.






































