Number 12
St Marys Drive, Whitegate
Offers Over £1,100,000
Property Overview
ADDRESS
Number 12, St Marys Drive, Whitegate, CW8 2EZ
BEDROOMS
5
BATHROOMS
3
Property Overview
ADDRESS
BEDROOMS
BATHROOMS
Property Details
Property
Details
A 3778sqft distinguished and detached family home in a prime spot on the Vale Royal estate
12 St Mary’s Drive, Whitegate, CW8 2EZ
Country commutability, fantastic flow and functional family living: welcome to No. 12, St Mary’s Drive.
Best of all worlds
Peacefully placed in Whitegate, set between woodland, fairway and far-reaching travel links, No. 12, St Mary’s Drive is a spacious home, built in 2001 and thoughtfully reworked by its owners. Once the original show home, No. 12, re-oriented for improved flow and light, is every inch the forever home its owners set out to create, designed for easy living and effortless movement between rooms.
Electric gates open onto a vast driveway with parking for multiple vehicles, making it ideal as children turn into adolescents, also with a triple garage arranged in a single block, with the third garage currently used for storage.
A handsome home, landscaped by its neatly manicured lawn and softened by leafy, layered planting, No. 12, St Mary’s Drive creates a captivating first impression.
Space and light
Welcome home. Step inside, where the portico entrance provides shelter and shade, beforethe oak door opens into a warm and inviting entrance hall. A modern extension to the original home, light streams down from skylights in the vaulted ceiling above and a window to the front, transforming the light and airy entrance hall into a sociable mingling space in its own right. Wooden flooring extends underfoot, continuing ahead into what was once a small sitting room, now opened up to create a spacious and open entrance to the wider home.
Elegant detailing in the cornicing and architraves reveals the high-quality finish of this home, beautifully maintained by its only owners.
Crossing the entrance hall, emerge into the utility room, tiled underfoot and with plenty of storage alongside plumbing for a washing machine and dryer. Formerly the study, French doors open out to the garden.
Retracing your steps, turn left to arrive at the expansive dining room, where beautifully layered cornicing and richly toned wooden flooring add to the sense of occasion. Originally a large family room, this capacious room is ideal for entertaining, accessed through a glazed door to retain a sense of connection, while French doors in a deep bay window opening out to the large, sheltered patio, perfect for al fresco summer dining.
Turning left from the entrance hall, the inner hallway leads past the stairs, where storage can be found for coats and shoes, with a cloakroom conveniently situated opposite, furnished with vanity unit washbasin and WC.
Savour the moment
At the heart of the home, the timeless family kitchen offers an abundance of storage in the wall units, alongside a spacious central island, where warm wooden cabinetry is paired with crisp black granite worktops.
From preparing food to clearing away and settling back with a coffee, the kitchen works as the natural daily hub of the house, with a relaxed dining area to the side, opposite French doors opening out to the east-facing terrace where morning light streams in, irresistibly inviting breakfast outside in the early morning sun.
Along this east wing of the home, glazed double doors open next to a peaceful snug, where wooden flooring features underfoot and French doors again connect with the eastern terrace, creating a perfect party flow when entertaining; with not only the dining-kitchen, but also the lounge next door.
A bountiful family room, a deep down-lit inglenook houses a log-burning stove, also furnished with a traditional grate allowing the fire to be laid for either logs or coal, and with a 6kW output, lending real warmth to winter evenings.
French doors open the room directly onto the side terrace in warmer months, while atChristmas, this is the natural space for the Christmas tree and a gathering of family members for the annual present swap.
Rest and refresh
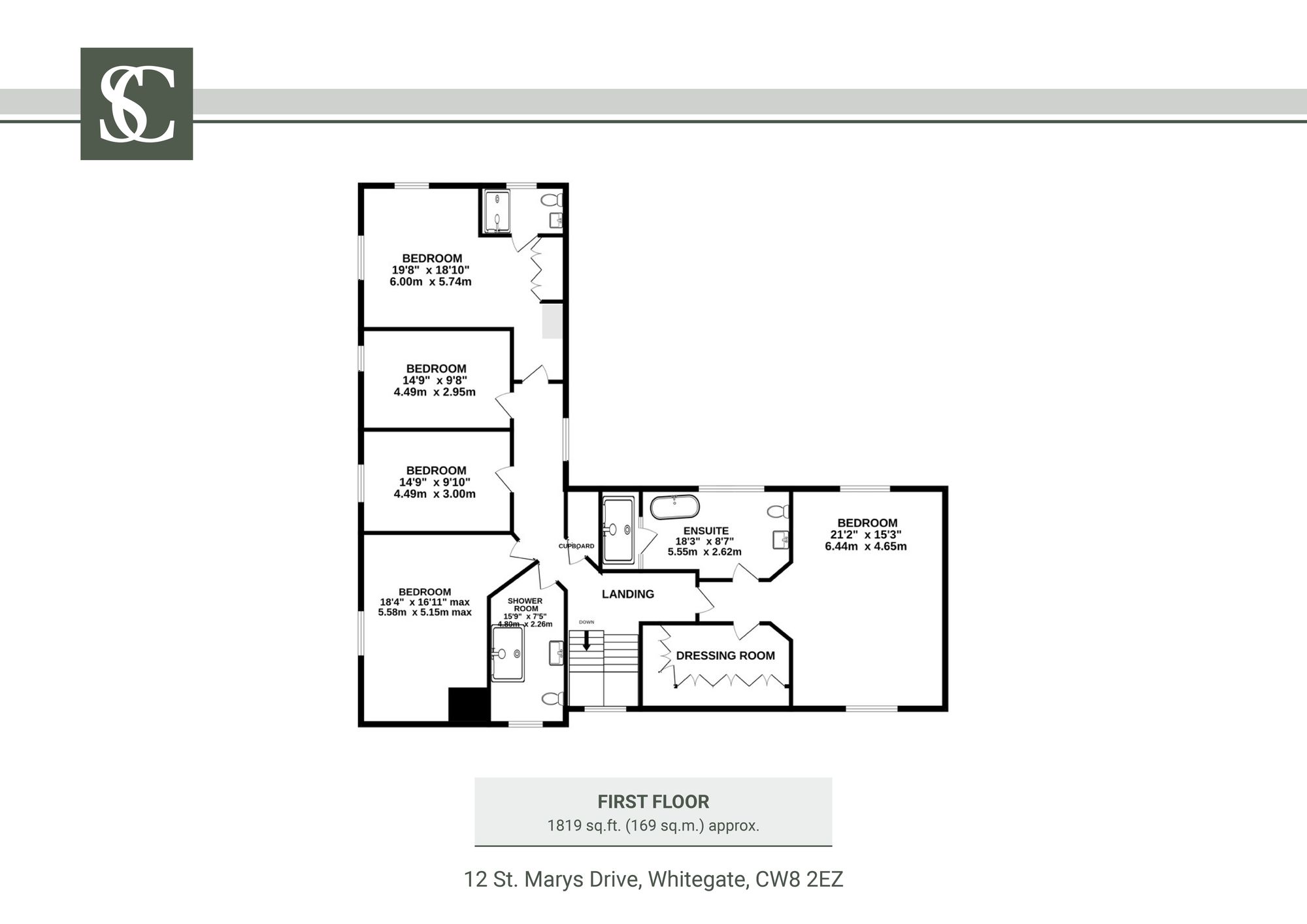
Returning to the inner hall, wooden stairs lead up to the first-floor landing where, privately nestled away from the main flow of bedrooms to the right, the master bedroom offers rest and recharge.
Adding to the sense of separation, an inner hallway leads past a bespoke fitted dressing room to the right, providing practical, everyday storage, and to the left past a luxurious en suite by Handforth Artisans. Soak away the aches in the freestanding bath furnished with a floor-mounted waterfall tap, while a walk-in wet-room shower is enclosed in clear glass and finished in calm, stone-toned tiling. Two windows draw in natural light for a sense of soothing calm.
Light and bright, the main bedroom itself offers views to the front and rear, a serene space to retreat to at the end of a busy day.
Returning along the landing, to the left of the stairs lies the main family bathroom, furnished by Handforth Artisans and featuring a modern walk-through shower with rainfall head, floating vanity unit wash basin and WC.
Continuing along the landing, three further calm and comfortable double bedrooms provide easy space for family or visiting guests, each enjoying soft natural light and restful views across the gardens.
At the far end, an impressively sized guest bedroom awaits — bright, airy and thoughtfully fitted with built-in wardrobes, along with its own private en suite shower room for complete independence and comfort.
Garden delights
Outside, the lush landscaping to the front of the home continues around to the sides and rear, where the garden has been nurtured for low maintenance leisure. Astro turf lawn offers year-round neatness, alongside mature, brick-edged borders that have been lovingly established by the current owners.
A true potterer’s paradise: all the structural hard work has long been done, leaving a calm, low-effort space to simply enjoy while unwinding on the large areas of patio and terracing.
To one side, a covered log store and the third garage serve as practical garden storage, while the converted first floor above the garage offers a surprisingly large additional space running the full footprint of the building; complete with staircase access, electrics, phone line and Wi-Fi, making it ideal as a home office or hobby room.
Out and about
Step outside and explore the tranquil, community strong village of Whitegate, where St Mary’s Church and its neighbouring primary school are at the heart of its sense of ethos.
From the edge of St Mary’s Drive, Church Woods unfurl towards the village centre, threaded with three or four well-trodden paths ideal for morning loops and dog walks.
For leisure, Vale Royal Abbey and its surrounding golf course are close by, with a number of neighbours current members, while the village itself is supported by a community centre and local nursery.
Day-to-day amenities, shops and wider schooling options (including the prestigious Grange independent school) are found just next door in Hartford, with supermarkets, independent stores, bars and restaurants within easy reach.
Transport links are particularly strong: Hartford station provides direct rail services to Liverpool and Birmingham, while nearby Greenbank connects into both Manchester and Chester. Road access places Manchester, Chester and Liverpool comfortably within reach, along with two major airports for national and international travel, making this a location that balances rural calm with convenient connectivity.
Easy to live in and easy to leave for work or travel, No. 12, St Mary’s Drive is a home of classic style, upgraded by its owners to timelessly support busy modern life. With woodland walks on the doorstep and a garden made for summer ease and enjoyment, this is a home that welcomes all generations of families.
Disclaimer
The information Storeys of Cheshire has provided is for general informational purposes only and does not form part of any offer or contract. The agent has not tested any equipment or services and cannot verify their working order or suitability. Buyers should consult their solicitor or surveyor for verification. Photographs shown are for illustration purposes only and may not reflect the items included in the property sale. Please note that lifestyle descriptions are provided as a general indication. Regarding planning and building consents, buyers should conduct their own enquiries with the relevant authorities. All measurements are approximate. Properties are offered subject to contract, and neither Storeys of Cheshire nor its employees or associated partners have the authority to provide any representations or warranties.
Property Details
A 3778sqft distinguished and detached family home in a prime spot on the Vale Royal estate
12 St Mary’s Drive, Whitegate, CW8 2EZ
Country commutability, fantastic flow and functional family living: welcome to No. 12, St Mary’s Drive.
Best of all worlds
Peacefully placed in Whitegate, set between woodland, fairway and far-reaching travel links, No. 12, St Mary’s Drive is a spacious home, built in 2001 and thoughtfully reworked by its owners. Once the original show home, No. 12, re-oriented for improved flow and light, is every inch the forever home its owners set out to create, designed for easy living and effortless movement between rooms.
Electric gates open onto a vast driveway with parking for multiple vehicles, making it ideal as children turn into adolescents, also with a triple garage arranged in a single block, with the third garage currently used for storage.
A handsome home, landscaped by its neatly manicured lawn and softened by leafy, layered planting, No. 12, St Mary’s Drive creates a captivating first impression.
Space and light
Welcome home. Step inside, where the portico entrance provides shelter and shade, beforethe oak door opens into a warm and inviting entrance hall. A modern extension to the original home, light streams down from skylights in the vaulted ceiling above and a window to the front, transforming the light and airy entrance hall into a sociable mingling space in its own right. Wooden flooring extends underfoot, continuing ahead into what was once a small sitting room, now opened up to create a spacious and open entrance to the wider home.
Elegant detailing in the cornicing and architraves reveals the high-quality finish of this home, beautifully maintained by its only owners.
Crossing the entrance hall, emerge into the utility room, tiled underfoot and with plenty of storage alongside plumbing for a washing machine and dryer. Formerly the study, French doors open out to the garden.
Retracing your steps, turn left to arrive at the expansive dining room, where beautifully layered cornicing and richly toned wooden flooring add to the sense of occasion. Originally a large family room, this capacious room is ideal for entertaining, accessed through a glazed door to retain a sense of connection, while French doors in a deep bay window opening out to the large, sheltered patio, perfect for al fresco summer dining.
Turning left from the entrance hall, the inner hallway leads past the stairs, where storage can be found for coats and shoes, with a cloakroom conveniently situated opposite, furnished with vanity unit washbasin and WC.
Savour the moment
At the heart of the home, the timeless family kitchen offers an abundance of storage in the wall units, alongside a spacious central island, where warm wooden cabinetry is paired with crisp black granite worktops.
From preparing food to clearing away and settling back with a coffee, the kitchen works as the natural daily hub of the house, with a relaxed dining area to the side, opposite French doors opening out to the east-facing terrace where morning light streams in, irresistibly inviting breakfast outside in the early morning sun.
Along this east wing of the home, glazed double doors open next to a peaceful snug, where wooden flooring features underfoot and French doors again connect with the eastern terrace, creating a perfect party flow when entertaining; with not only the dining-kitchen, but also the lounge next door.
A bountiful family room, a deep down-lit inglenook houses a log-burning stove, also furnished with a traditional grate allowing the fire to be laid for either logs or coal, and with a 6kW output, lending real warmth to winter evenings.
French doors open the room directly onto the side terrace in warmer months, while atChristmas, this is the natural space for the Christmas tree and a gathering of family members for the annual present swap.
Rest and refresh
Returning to the inner hall, wooden stairs lead up to the first-floor landing where, privately nestled away from the main flow of bedrooms to the right, the master bedroom offers rest and recharge.
Adding to the sense of separation, an inner hallway leads past a bespoke fitted dressing room to the right, providing practical, everyday storage, and to the left past a luxurious en suite by Handforth Artisans. Soak away the aches in the freestanding bath furnished with a floor-mounted waterfall tap, while a walk-in wet-room shower is enclosed in clear glass and finished in calm, stone-toned tiling. Two windows draw in natural light for a sense of soothing calm.
Light and bright, the main bedroom itself offers views to the front and rear, a serene space to retreat to at the end of a busy day.
Returning along the landing, to the left of the stairs lies the main family bathroom, furnished by Handforth Artisans and featuring a modern walk-through shower with rainfall head, floating vanity unit wash basin and WC.
Continuing along the landing, three further calm and comfortable double bedrooms provide easy space for family or visiting guests, each enjoying soft natural light and restful views across the gardens.
At the far end, an impressively sized guest bedroom awaits — bright, airy and thoughtfully fitted with built-in wardrobes, along with its own private en suite shower room for complete independence and comfort.
Garden delights
Outside, the lush landscaping to the front of the home continues around to the sides and rear, where the garden has been nurtured for low maintenance leisure. Astro turf lawn offers year-round neatness, alongside mature, brick-edged borders that have been lovingly established by the current owners.
A true potterer’s paradise: all the structural hard work has long been done, leaving a calm, low-effort space to simply enjoy while unwinding on the large areas of patio and terracing.
To one side, a covered log store and the third garage serve as practical garden storage, while the converted first floor above the garage offers a surprisingly large additional space running the full footprint of the building; complete with staircase access, electrics, phone line and Wi-Fi, making it ideal as a home office or hobby room.
Out and about
Step outside and explore the tranquil, community strong village of Whitegate, where St Mary’s Church and its neighbouring primary school are at the heart of its sense of ethos.
From the edge of St Mary’s Drive, Church Woods unfurl towards the village centre, threaded with three or four well-trodden paths ideal for morning loops and dog walks.
For leisure, Vale Royal Abbey and its surrounding golf course are close by, with a number of neighbours current members, while the village itself is supported by a community centre and local nursery.
Day-to-day amenities, shops and wider schooling options (including the prestigious Grange independent school) are found just next door in Hartford, with supermarkets, independent stores, bars and restaurants within easy reach.
Transport links are particularly strong: Hartford station provides direct rail services to Liverpool and Birmingham, while nearby Greenbank connects into both Manchester and Chester. Road access places Manchester, Chester and Liverpool comfortably within reach, along with two major airports for national and international travel, making this a location that balances rural calm with convenient connectivity.
Easy to live in and easy to leave for work or travel, No. 12, St Mary’s Drive is a home of classic style, upgraded by its owners to timelessly support busy modern life. With woodland walks on the doorstep and a garden made for summer ease and enjoyment, this is a home that welcomes all generations of families.
Disclaimer
The information Storeys of Cheshire has provided is for general informational purposes only and does not form part of any offer or contract. The agent has not tested any equipment or services and cannot verify their working order or suitability. Buyers should consult their solicitor or surveyor for verification. Photographs shown are for illustration purposes only and may not reflect the items included in the property sale. Please note that lifestyle descriptions are provided as a general indication. Regarding planning and building consents, buyers should conduct their own enquiries with the relevant authorities. All measurements are approximate. Properties are offered subject to contract, and neither Storeys of Cheshire nor its employees or associated partners have the authority to provide any representations or warranties.
Request A Viewing At
Number 12
Please read the Storeys Of Cheshire Privacy Policy.
This site is protected by reCAPTCHA and the Google Privacy Policy and Terms of Service apply.



























































