Greenacres
Willington, Tarporley
Offers Over £450,000
Property Overview
ADDRESS
Greenacres, Willington, Tarporley, CW6 0LX
BEDROOMS
3
BATHROOMS
2
Property Overview
ADDRESS
BEDROOMS
BATHROOMS
Property Details
Property
Details
Splendid plot and location, subject to an agricultural occupancy clause
PARADISE FOUND
Welcome to Utkinton, an idyllic rural village nestled on the cusp of the sandstone trail that runs through the verdant Cheshire countryside. A village with a history steeped in agriculture.
It is here you will find Greenacres, a home purpose built 55 years ago upon four acres of land, previously devoted to the owner’s market garden business. Making its debut on the market, Greenacres is a peaceful home, in a quiet setting, overflowing with scope for development and transformation into the ultimate 21st century family home.
Pull through the wooden gate and onto the drive, where abundant parking is available enclosed within a feature stone wall. Lush lawns extend to the front, side and rear of the property with open views to the adjoining fields.
LET THERE BE LIGHT
Make your way to the front door, stepping into a large entrance hallway, with a cloakroom on the right. To the left, stairs lead up to the first floor.
Remaining on the ground floor level, beyond the staircase, a door on the left leads through to the lounge. Light and bright, two broad windows draw in views of the large garden to the front and to the field over the road.
Within the bespoke, feature stone fireplace, an electric log burning stove emanates warmth and welcome. Carpeted and neutral in its décor, this is a room where the windows frame the feature artwork of the surrounding countryside.
WARMTH AND WELCOME
Directly ahead from the front door, wander through into the dining kitchen, where a black Rayburner rests within an inglenook, filling the room with warmth. White gloss cabinets are topped in black granite and appliances include an electric oven and dishwasher, with space for a freestanding fridge freezer.
Double doors from the dining kitchen open into a bright conservatory, where a multitude of windows provide garden views, drawing them in. Throw the doors open in the summer months for harmony between the outdoors and in.
An internal boot room to the rear of the bungalow can be accessed from the kitchen and leads to the back door and internal garage door. There are also patio doors leading to the garden.
Returning to the entrance hall, turn right along an inner hallway, where two bedrooms and a bathroom are situated.
PICTURESQUE VIEWS
Nestled to the front and basking in rural views over the fields, discover the master bedroom. Spacious and light, there is ample room for a double bed and wardrobes. Serving the master bedroom, a separate bathroom contains a bath and free-standing shower, alongside WC and wash basin.
The large second bedroom, with an ensuite has views through the boot room to the back garden.
LADEN WITH POTENTIAL
Taking the stairs from the entrance hall up to the first level, discover a second sitting room (or third bedroom), where incredible views out over the Cheshire plains display themselves in the windows, taking in the nearby castles and the Welsh mountains. There is a flue should you wish to install a log burning stove.
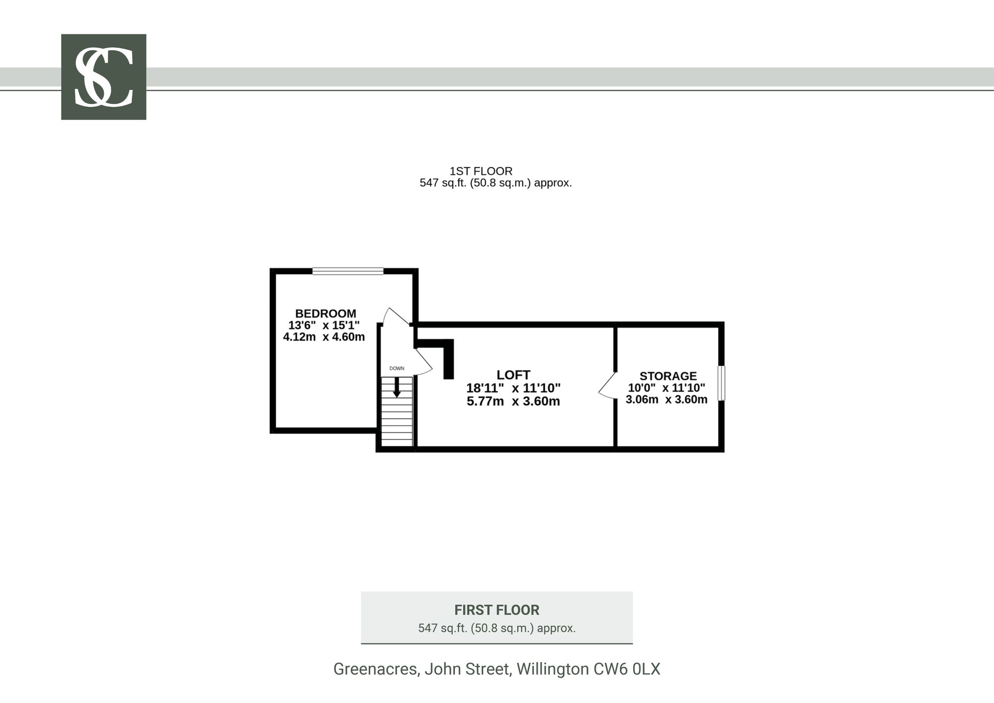
Consider too the scope for further bedrooms. At the top of the stairs to the right there is a full height loft, currently used for storage but ideal for conversion into two further bedrooms.
Outside, explore the extensive gardens, nurtured lovingly over the years. Stonemason-built walls feature throughout the garden and grounds whilst mature trees dapple the grounds, adding variegated colour and interest.
Completely private, stone steps lead down from the conservatory to an expanse of level lawn, perfect for entertaining and evenings filled with the laughter of family and friends.
IN TOUCH WITH THE TOWN
At Greenacres, remain connected whilst you disengage from the hustle and bustle of modern life; for a slice of the action, fashionable Tarporley is a mere five minutes’ drive away.
A thriving high street epitomises Tarporley’s strong community feel. Here, there is something to delight all ages; from ice creams at Amy’s Farm Shop, to browsing the deli counter at The Hollies Farm Shop, enjoying contemporary dining at Cornichon or savouring a refreshing drink at the Little Tap. Browse boutique shops such as Bijoux and Baile Home, or take in a round of golf at the renowned Portal Premier Golf & Country Club on the edge of town. The opportunity for leisure and entertainment is endless.
In Utkinton itself, Rose Farm Shop is a bustling hub featuring a café, farm shop, florist, butcher, delicatessen, grocers and convenience store. Chester is only around a 20-minute drive away with its restaurants, parks, museums, shops and theatres.
Access the glorious countryside from your own land, where a track leads onto a public footpath, linking to Cheshire’s famous Sandstone Trail. From here, take in the impressive sights of Beeston Castle, an English Heritage site perched high on the sandstone cliffs providing panoramas over the Chester plains. Delamere Forest with its lakes, trails and diverse wildlife, is also within easy reach.
With great proximity to road links, access to the nearby cities is straightforward; handy for those needing to travel on business.
Wrapped up in rurality, set on four acres of land and brimming in the potential to extend and develop, Greenacres is a peaceful, pretty haven, where your dreams can become reality.
Disclaimer
The information Storeys of Cheshire has provided is for general informational purposes only and does not form part of any offer or contract. The agent has not tested any equipment or services and cannot verify their working order or suitability. Buyers should consult their solicitor or surveyor for verification. Photographs shown are for illustration purposes only and may not reflect the items included in the property sale. Please note that lifestyle descriptions are provided as a general indication. Regarding planning and building consents, buyers should conduct their own enquiries with the relevant authorities. All measurements are approximate. Properties are offered subject to contract, and neither Storeys of Cheshire nor its employees or associated partners have the authority to provide any representations or warranties.
*Please note, the neighbour has shared access to parts of Greenacres - please contact the team at Storeys to discuss this further.
Property Details
Splendid plot and location, subject to an agricultural occupancy clause
PARADISE FOUND
Welcome to Utkinton, an idyllic rural village nestled on the cusp of the sandstone trail that runs through the verdant Cheshire countryside. A village with a history steeped in agriculture.
It is here you will find Greenacres, a home purpose built 55 years ago upon four acres of land, previously devoted to the owner’s market garden business. Making its debut on the market, Greenacres is a peaceful home, in a quiet setting, overflowing with scope for development and transformation into the ultimate 21st century family home.
Pull through the wooden gate and onto the drive, where abundant parking is available enclosed within a feature stone wall. Lush lawns extend to the front, side and rear of the property with open views to the adjoining fields.
LET THERE BE LIGHT
Make your way to the front door, stepping into a large entrance hallway, with a cloakroom on the right. To the left, stairs lead up to the first floor.
Remaining on the ground floor level, beyond the staircase, a door on the left leads through to the lounge. Light and bright, two broad windows draw in views of the large garden to the front and to the field over the road.
Within the bespoke, feature stone fireplace, an electric log burning stove emanates warmth and welcome. Carpeted and neutral in its décor, this is a room where the windows frame the feature artwork of the surrounding countryside.
WARMTH AND WELCOME
Directly ahead from the front door, wander through into the dining kitchen, where a black Rayburner rests within an inglenook, filling the room with warmth. White gloss cabinets are topped in black granite and appliances include an electric oven and dishwasher, with space for a freestanding fridge freezer.
Double doors from the dining kitchen open into a bright conservatory, where a multitude of windows provide garden views, drawing them in. Throw the doors open in the summer months for harmony between the outdoors and in.
An internal boot room to the rear of the bungalow can be accessed from the kitchen and leads to the back door and internal garage door. There are also patio doors leading to the garden.
Returning to the entrance hall, turn right along an inner hallway, where two bedrooms and a bathroom are situated.
PICTURESQUE VIEWS
Nestled to the front and basking in rural views over the fields, discover the master bedroom. Spacious and light, there is ample room for a double bed and wardrobes. Serving the master bedroom, a separate bathroom contains a bath and free-standing shower, alongside WC and wash basin.
The large second bedroom, with an ensuite has views through the boot room to the back garden.
LADEN WITH POTENTIAL
Taking the stairs from the entrance hall up to the first level, discover a second sitting room (or third bedroom), where incredible views out over the Cheshire plains display themselves in the windows, taking in the nearby castles and the Welsh mountains. There is a flue should you wish to install a log burning stove.
Consider too the scope for further bedrooms. At the top of the stairs to the right there is a full height loft, currently used for storage but ideal for conversion into two further bedrooms.
Outside, explore the extensive gardens, nurtured lovingly over the years. Stonemason-built walls feature throughout the garden and grounds whilst mature trees dapple the grounds, adding variegated colour and interest.
Completely private, stone steps lead down from the conservatory to an expanse of level lawn, perfect for entertaining and evenings filled with the laughter of family and friends.
IN TOUCH WITH THE TOWN
At Greenacres, remain connected whilst you disengage from the hustle and bustle of modern life; for a slice of the action, fashionable Tarporley is a mere five minutes’ drive away.
A thriving high street epitomises Tarporley’s strong community feel. Here, there is something to delight all ages; from ice creams at Amy’s Farm Shop, to browsing the deli counter at The Hollies Farm Shop, enjoying contemporary dining at Cornichon or savouring a refreshing drink at the Little Tap. Browse boutique shops such as Bijoux and Baile Home, or take in a round of golf at the renowned Portal Premier Golf & Country Club on the edge of town. The opportunity for leisure and entertainment is endless.
In Utkinton itself, Rose Farm Shop is a bustling hub featuring a café, farm shop, florist, butcher, delicatessen, grocers and convenience store. Chester is only around a 20-minute drive away with its restaurants, parks, museums, shops and theatres.
Access the glorious countryside from your own land, where a track leads onto a public footpath, linking to Cheshire’s famous Sandstone Trail. From here, take in the impressive sights of Beeston Castle, an English Heritage site perched high on the sandstone cliffs providing panoramas over the Chester plains. Delamere Forest with its lakes, trails and diverse wildlife, is also within easy reach.
With great proximity to road links, access to the nearby cities is straightforward; handy for those needing to travel on business.
Wrapped up in rurality, set on four acres of land and brimming in the potential to extend and develop, Greenacres is a peaceful, pretty haven, where your dreams can become reality.
Disclaimer
The information Storeys of Cheshire has provided is for general informational purposes only and does not form part of any offer or contract. The agent has not tested any equipment or services and cannot verify their working order or suitability. Buyers should consult their solicitor or surveyor for verification. Photographs shown are for illustration purposes only and may not reflect the items included in the property sale. Please note that lifestyle descriptions are provided as a general indication. Regarding planning and building consents, buyers should conduct their own enquiries with the relevant authorities. All measurements are approximate. Properties are offered subject to contract, and neither Storeys of Cheshire nor its employees or associated partners have the authority to provide any representations or warranties.
*Please note, the neighbour has shared access to parts of Greenacres - please contact the team at Storeys to discuss this further.
Request A Viewing At
Greenacres
Please read the Storeys Of Cheshire Privacy Policy.
This site is protected by reCAPTCHA and the Google Privacy Policy and Terms of Service apply.













