Fir Villa
Oldcastle Lane, Threapwood
Offers Over £700,000
Property Overview
ADDRESS
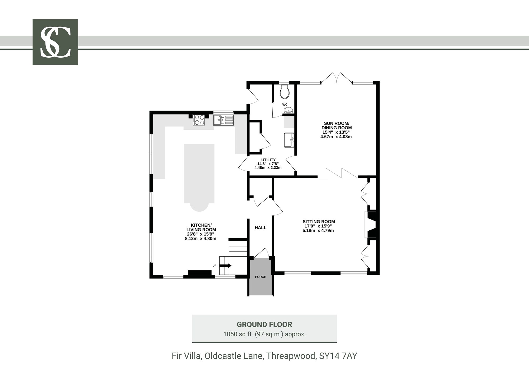
Fir Villa, Oldcastle Lane, Threapwood, SY14 7AY
BEDROOMS
4
BATHROOMS
2
Property Overview
ADDRESS
BEDROOMS
BATHROOMS
Property Details
Property
Details
A stunning blend of character and modernity in a beautiful rural location
Set in a peaceful pocket of rural Cheshire, on the leafy edges of the friendly market village of Malpas, close to the rolling borderlands of Shropshire and Wales, Fir Villa is a family home reborn.
History reimagined
Dating back in parts to the early 1800, Fir Villa, formerly the village post office, still delivers – now serving modern family living rather than the wider community following extensive renovation works including roof replacement, external re-finishing and a reconfigured internal layout.
Pull through gate pillars edged by hedging and along the shared tarmacked approach before arriving at a substantial gravel driveway, with parking for two cars in front of the electric-door garage, and a further four spaces beyond.
OWNER QUOTE: “Everything we’ve done at Fir Villa has been carried out with a view to this being our long-term home. We’ve invested in quality and careful workmanship throughout.”
From beneath the oak framed portico, step through into the entrance hall, where Italian porcelain tiles sets the scene.
Welcome home
Timeless, neutral yet warm toned décor evolves as you journey through the home, with a combination of fresh white and soothing soft grey in the lounge to the right. Nestled in a downlit, exposed Cheshire-brick surround, beneath a treacle-brown rustic beam, the Clearview log-burning stove emanates warmth and welcome. To either side, Neville Johnson made to measure cabinetry provides seamless storage for books, ornaments, board games and a television.
Entertain indoors and out
Bifolding, timber-frame glass doors open up to lend a party flow to the room when entertaining, opening up into the orangery, currently serving as a dining room, and bathed in light from Velux windows above and full height glazing capturing views out over the garden. An all-season modern addition to the home, underfloor heating ensures this room offers a warm welcome throughout the year. Doors open to connect with the large patio, where a built-in pizza oven beckons ahead, ideal for parties, where food, drink and merriment can drift in and out.
OWNER QUOTE: “There is so much light in this home, it’s beautiful and bright even on a dull day.”
Off the dining room, a hallway leads through connecting to a fully tiled downstairs cloakroom with wash basin and WC alongside a spacious utility room, warmed by underfloor heating and with bespoke, built-in boot room storage for shoes and coats and access out to the garden.
Continue along and into the family dining kitchen, newly fitted by the Cheshire Kitchen Company of Tarporley.
Family time
The heart of the home, this sociable kitchen is the natural place to congregate, perfectly epitomising the modern method of family living. Storage is plentiful, with cupboards also found within the central island, which features breakfast bar seating to one end. Blending contemporary features including a wine fridge, bank of ovens and inset sink, the kitchen retains a homely warmth perfectly in keeping with the home’s rural setting, with inset Shaker-style cabinetry in dove grey and exposed timber above the Metro-tiled inglenook for the induction hob.
OWNER QUOTE: “I never feel on my own in here, everybody mingles in the kitchen.”
Light streams in through windows overlooking the garden, as the kitchen opens up into dining and seating areas.
And so to bed ...
A new oak staircase leads up to the double height landing, airy and bright courtesy of an array of windows inviting the views in.
Countryside views captivate from the first of the double bedrooms on the left, looking out over the fields and hedgerows. Carpeted underfoot, plenty of storage can be found in the alcove shelving, with ample space for a wardrobe.
Coming out of this bedroom, next door a second double bedroom also offers plenty of storage, with full-height Sharps fitted wardrobes.
To the left, refresh in the family bathroom, part tiled in white to the walls, with Farrow & Ball’s ‘Downpipe’ above for a cocooning, contemporary vibe. Relax and revive in the bath, where a shower features above. Storage awaits in the vanity unit beneath the wash basin.
Light streams through the master bedroom, tucked away to the left, where two windows look out over the rear garden and field beyond, grazed by horses. A walk-through dressing room offers plenty of storage, lined in Hammonds fitted wardrobes and looking out over the greenery beyond. From here, the en suite shower room is a private place to spritz and prepare for the day ahead, fitted with double shower.
Next door, the fourth bedroom is spacious enough for a double bed and could be opened upand integrated into the master suite, should you choose.
A garden for work, rest and play
Designed around entertaining indoors, outside, the peaceful, private garden follows suit.Retaining the sun’s warmth in summer, the patio nestles within a walled area of the garden. Installed by the current owners the patio is the sociable centre of the garden in summer, flowing off the orangery and served by its own built-in pizza oven, perfect for evenings with friends and relaxed family gatherings. Beyond, the broad lawn offers plenty of room for children to play, while the garage, freshly clad by the owners, now sits comfortably within the garden setting.
At the far end of the garden, a professionally finished home office provides a light-filled, fully plastered workspace replete with full Wi-Fi. With doors opening back towards the home and open countryside beyond, this multifunction room is totally versatile – as adept to taking conference calls as it is for watching sport on weekends.
Bathed in morning sun, the garden is saturated with light until early evening in summer when it lingers over the garden room before setting.
A large log store is discreetly positioned beside the garage, with an oil tank screened by brickwork, while a shed and a useful outdoor utility area housing space for appliances and overflow storage also feature.
Out and about
An ideal location for families, the welcoming village of Threapwood comes with a wide-ranging mix of ages. Embodying the essence of olde worlde England, encounter friendly neighbours who smile and stop to chat whilst on the morning dog walk.
Perfectly positioned for a wide range of nearby schools, Fir Villa sits within the catchment for the sought after Bishop Heber High School in Malpas, with the added bonus of a free school coach stopping directly outside the driveway. Meanwhile, a selection of well-regarded primary schools can be found nearby, including Malpas, Tilston and Shocklach.
Fresh air awaits on the doorstep with quiet lanes and off-road routes perfect for walking, cycling, with children able to ride bikes safely, and a network of footpaths leading out into open countryside.
Just three miles away, the thriving market village of Malpas provides everything needed for day-to-day life, including shops, eateries and clubs for all ages, including Cubs, Scouts, gymnastics and dance. The Lion pub is a popular local favourite for food, while a fish and chip shop and a range of independent businesses add to the sense of community. A small village shop closer to home caters for everyday essentials such as milk and newspapers.
Comfortable, warm and homely, Fir Villa, with its spacious open living, serves as a fantastic family home, with space to come together and socialise indoors and out.
Disclaimer
The information Storeys of Cheshire has provided is for general informational purposes only and does not form part of any offer or contract. The agent has not tested any equipment or services and cannot verify their working order or suitability. Buyers should consult their solicitor or surveyor for verification. Photographs shown are for illustration purposes only and may not reflect the items included in the property sale. Please note that lifestyle descriptions are provided as a general indication. Regarding planning and building consents, buyers should conduct their own enquiries with the relevant authorities. All measurements are approximate. Properties are offered subject to contract, and neither Storeys of Cheshire nor its employees or associated partners have the authority to provide any representations or warranties.
Property Details
A stunning blend of character and modernity in a beautiful rural location
Set in a peaceful pocket of rural Cheshire, on the leafy edges of the friendly market village of Malpas, close to the rolling borderlands of Shropshire and Wales, Fir Villa is a family home reborn.
History reimagined
Dating back in parts to the early 1800, Fir Villa, formerly the village post office, still delivers – now serving modern family living rather than the wider community following extensive renovation works including roof replacement, external re-finishing and a reconfigured internal layout.
Pull through gate pillars edged by hedging and along the shared tarmacked approach before arriving at a substantial gravel driveway, with parking for two cars in front of the electric-door garage, and a further four spaces beyond.
OWNER QUOTE: “Everything we’ve done at Fir Villa has been carried out with a view to this being our long-term home. We’ve invested in quality and careful workmanship throughout.”
From beneath the oak framed portico, step through into the entrance hall, where Italian porcelain tiles sets the scene.
Welcome home
Timeless, neutral yet warm toned décor evolves as you journey through the home, with a combination of fresh white and soothing soft grey in the lounge to the right. Nestled in a downlit, exposed Cheshire-brick surround, beneath a treacle-brown rustic beam, the Clearview log-burning stove emanates warmth and welcome. To either side, Neville Johnson made to measure cabinetry provides seamless storage for books, ornaments, board games and a television.
Entertain indoors and out
Bifolding, timber-frame glass doors open up to lend a party flow to the room when entertaining, opening up into the orangery, currently serving as a dining room, and bathed in light from Velux windows above and full height glazing capturing views out over the garden. An all-season modern addition to the home, underfloor heating ensures this room offers a warm welcome throughout the year. Doors open to connect with the large patio, where a built-in pizza oven beckons ahead, ideal for parties, where food, drink and merriment can drift in and out.
OWNER QUOTE: “There is so much light in this home, it’s beautiful and bright even on a dull day.”
Off the dining room, a hallway leads through connecting to a fully tiled downstairs cloakroom with wash basin and WC alongside a spacious utility room, warmed by underfloor heating and with bespoke, built-in boot room storage for shoes and coats and access out to the garden.
Continue along and into the family dining kitchen, newly fitted by the Cheshire Kitchen Company of Tarporley.
Family time
The heart of the home, this sociable kitchen is the natural place to congregate, perfectly epitomising the modern method of family living. Storage is plentiful, with cupboards also found within the central island, which features breakfast bar seating to one end. Blending contemporary features including a wine fridge, bank of ovens and inset sink, the kitchen retains a homely warmth perfectly in keeping with the home’s rural setting, with inset Shaker-style cabinetry in dove grey and exposed timber above the Metro-tiled inglenook for the induction hob.
OWNER QUOTE: “I never feel on my own in here, everybody mingles in the kitchen.”
Light streams in through windows overlooking the garden, as the kitchen opens up into dining and seating areas.
And so to bed ...
A new oak staircase leads up to the double height landing, airy and bright courtesy of an array of windows inviting the views in.
Countryside views captivate from the first of the double bedrooms on the left, looking out over the fields and hedgerows. Carpeted underfoot, plenty of storage can be found in the alcove shelving, with ample space for a wardrobe.
Coming out of this bedroom, next door a second double bedroom also offers plenty of storage, with full-height Sharps fitted wardrobes.
To the left, refresh in the family bathroom, part tiled in white to the walls, with Farrow & Ball’s ‘Downpipe’ above for a cocooning, contemporary vibe. Relax and revive in the bath, where a shower features above. Storage awaits in the vanity unit beneath the wash basin.
Light streams through the master bedroom, tucked away to the left, where two windows look out over the rear garden and field beyond, grazed by horses. A walk-through dressing room offers plenty of storage, lined in Hammonds fitted wardrobes and looking out over the greenery beyond. From here, the en suite shower room is a private place to spritz and prepare for the day ahead, fitted with double shower.
Next door, the fourth bedroom is spacious enough for a double bed and could be opened upand integrated into the master suite, should you choose.
A garden for work, rest and play
Designed around entertaining indoors, outside, the peaceful, private garden follows suit.Retaining the sun’s warmth in summer, the patio nestles within a walled area of the garden. Installed by the current owners the patio is the sociable centre of the garden in summer, flowing off the orangery and served by its own built-in pizza oven, perfect for evenings with friends and relaxed family gatherings. Beyond, the broad lawn offers plenty of room for children to play, while the garage, freshly clad by the owners, now sits comfortably within the garden setting.
At the far end of the garden, a professionally finished home office provides a light-filled, fully plastered workspace replete with full Wi-Fi. With doors opening back towards the home and open countryside beyond, this multifunction room is totally versatile – as adept to taking conference calls as it is for watching sport on weekends.
Bathed in morning sun, the garden is saturated with light until early evening in summer when it lingers over the garden room before setting.
A large log store is discreetly positioned beside the garage, with an oil tank screened by brickwork, while a shed and a useful outdoor utility area housing space for appliances and overflow storage also feature.
Out and about
An ideal location for families, the welcoming village of Threapwood comes with a wide-ranging mix of ages. Embodying the essence of olde worlde England, encounter friendly neighbours who smile and stop to chat whilst on the morning dog walk.
Perfectly positioned for a wide range of nearby schools, Fir Villa sits within the catchment for the sought after Bishop Heber High School in Malpas, with the added bonus of a free school coach stopping directly outside the driveway. Meanwhile, a selection of well-regarded primary schools can be found nearby, including Malpas, Tilston and Shocklach.
Fresh air awaits on the doorstep with quiet lanes and off-road routes perfect for walking, cycling, with children able to ride bikes safely, and a network of footpaths leading out into open countryside.
Just three miles away, the thriving market village of Malpas provides everything needed for day-to-day life, including shops, eateries and clubs for all ages, including Cubs, Scouts, gymnastics and dance. The Lion pub is a popular local favourite for food, while a fish and chip shop and a range of independent businesses add to the sense of community. A small village shop closer to home caters for everyday essentials such as milk and newspapers.
Comfortable, warm and homely, Fir Villa, with its spacious open living, serves as a fantastic family home, with space to come together and socialise indoors and out.
Disclaimer
The information Storeys of Cheshire has provided is for general informational purposes only and does not form part of any offer or contract. The agent has not tested any equipment or services and cannot verify their working order or suitability. Buyers should consult their solicitor or surveyor for verification. Photographs shown are for illustration purposes only and may not reflect the items included in the property sale. Please note that lifestyle descriptions are provided as a general indication. Regarding planning and building consents, buyers should conduct their own enquiries with the relevant authorities. All measurements are approximate. Properties are offered subject to contract, and neither Storeys of Cheshire nor its employees or associated partners have the authority to provide any representations or warranties.
Request A Viewing At
Fir Villa
Please read the Storeys Of Cheshire Privacy Policy.
This site is protected by reCAPTCHA and the Google Privacy Policy and Terms of Service apply.
























































